The Acorn Group is London’s largest multi-brand estate agency. We offer our clients the best brands, with the best people, in the best locations.

 

Close

OIEO £280,000 leasehold

Apartment for sale - Goldsel Road, Kent, BR8

Located in the heart of Swanley within a short walk from the town centre, local schools, bus routes & the Swanley mainline train station! This spacious split level apartment is in a great central location with many local amenities nearby. Offered to the sales market CHAIN FREE.

In close proximity of the local High Firs Primary and Crockenhill Primary school, the Swanley mainline train station, town Centre and the M25/A20/M20 road links. The Swanley station is within the Oyster zone and offers a direct commute into central London within approximately twenty minutes.

Further amenities to include, Bluewater Shopping Centre, Ebbsfleet international , Whiteoak Leisure centre, Swanley park and more.

This is the ideal buy for any first time buyer or buy to let investor!

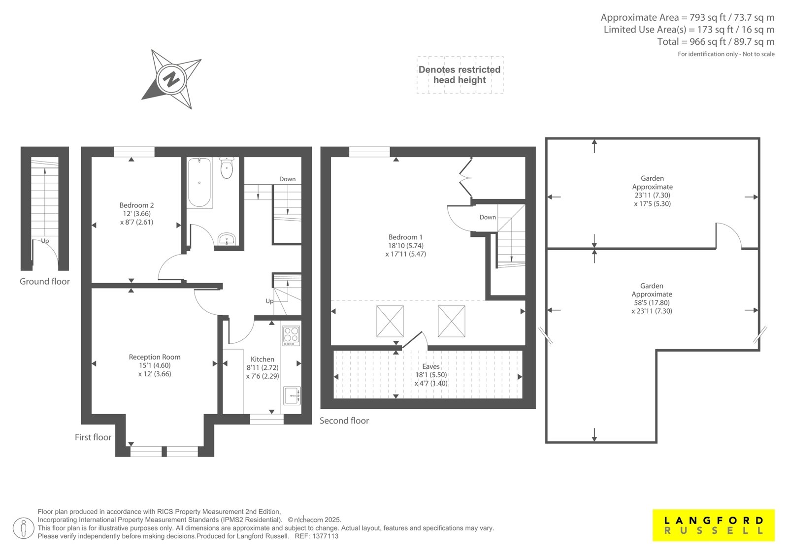
Property is set over three levels - to the ground floor stairs leading to first floor.

First floor boasting lounge/diner with bay window to front, modern fitted kitchen, double bedroom and modern fitted bathroom.

To the third floor - Spacious master bedroom with walk in wardrobe storage/space, and additional eve storage.

Externally you will find a good sized rear garden, mostly laid to lawn. Further to note this property offers double glazing and gas central heating.

Contact Langford Russell to arrange your internal inspection, viewing is highly recommended!

Tenure Share Of Freehold
999 Years Beginning on and including 4 July 2023 -
997 Years Remaining
Ground Rent - N/A
Service charge to include building insurance Approx £150 P/A
Local Authority Sevenoaks Tax Band B
Energy Efficiency Rating C

Talk to Hayley Buist from Langford Russell (Estate agents in Swanley)

 

Use our calculator to work out potential mortgage repayments and stamp duty costs. Please note, these calculators are for general interest only and must not be relied on. Speak to our Mortgage Scout team for further information and advice. 

Powered by

Total Mortgage

£

Estimated Monthly Mortgage Payment

£

  • Powered by

Swanley Area Guide

Explore the areas we serve – from parks, entertainment and transport links, to shopping, eating and drinking.

Dive into property knowledge

Visit the AcornIntel knowledge-base, our library of articles to help you make sense of all things property, or send your questions to our panel of property experts.

Get your property valued

Looking to sell or let your property? Get a free property valuation from one of our experts.

Top