The Acorn Group is London’s largest multi-brand estate agency. We offer our clients the best brands, with the best people, in the best locations.

 

Close

Asking price £385,000 shareOfFreehold

Apartment - George Lane, SE13

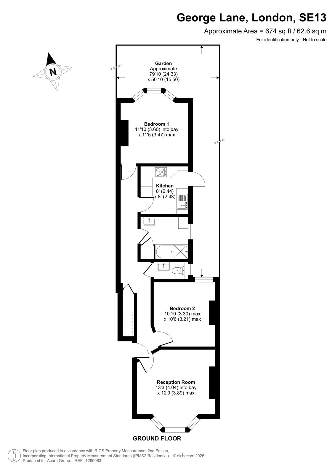
Acorn are pleased to welcome to the market this two-bedroom ground floor flat set on George Lane, offering a combination of generous interior space and a private south-facing garden, a superb appeal of choice for first-time buyers, downsizers, or investors seeking a home with potential in a well-connected area.

The property has recently been refreshed with a new lick of paint, giving it a clean and welcoming feel throughout. While generally well-maintained there is still ample opportunity for internal improvements and modernisation, allowing the new owner to add their own stamp and value over time.

Inside, the layout is practical and well-proportioned. The flat comprises two very good sized double bedrooms, a separate living room with feature bay window – flooding the room with natural light, a nice-sized kitchen, and a functional bathroom with a separate W/C. The kitchen provides direct access to the private rear garden, which benefits from a sunny south-facing aspect — ideal for relaxing, gardening, or entertaining during warmer months.
One of the standout features of this property is its garden — a peaceful outdoor space that's rarely available in similar flats. With direct access from the property, it adds a real sense of privacy and lifestyle flexibility, whether you're hosting friends or enjoying a quiet moment outside.

Lewisham, Catford, Hither Green and Ladywell, are all nearby, providing a wide range of retail shops, boutiques, cafes, bistros, and restaurants. Mountsfield Park and Ladywell Fields are ideal for joggers, walkers, and dog walkers, with well landscaped gardens. Hither Green Station is Zone 3, and offers incredibly connections to London Bridge, London Waterloo East, London Charing Cross, London Victoria via Lewisham, and Canary Wharf via The DLR in Lewisham.

Share of Freehold: 99 years (New lease to be granted) | Service Charge: £400pa | Council Tax: C | EPC Rating: D

Talk to Max Smith from Acorn (Estate agents in Lewisham)

 

Use our calculator to work out potential mortgage repayments and stamp duty costs. Please note, these calculators are for general interest only and must not be relied on. Speak to our Mortgage Scout team for further information and advice. 

Powered by

Total Mortgage

£

Estimated Monthly Mortgage Payment

£

  • Powered by

Lewisham Area Guide

Explore the areas we serve – from parks, entertainment and transport links, to shopping, eating and drinking.

Dive into property knowledge

Visit the AcornIntel knowledge-base, our library of articles to help you make sense of all things property, or send your questions to our panel of property experts.

Get your property valued

Looking to sell or let your property? Get a free property valuation from one of our experts.

Top