The Acorn Group is London’s largest multi-brand estate agency. We offer our clients the best brands, with the best people, in the best locations.

 

Close

£2,250 per month

Town House to rent - Trafford Way, Beckenham, BR3

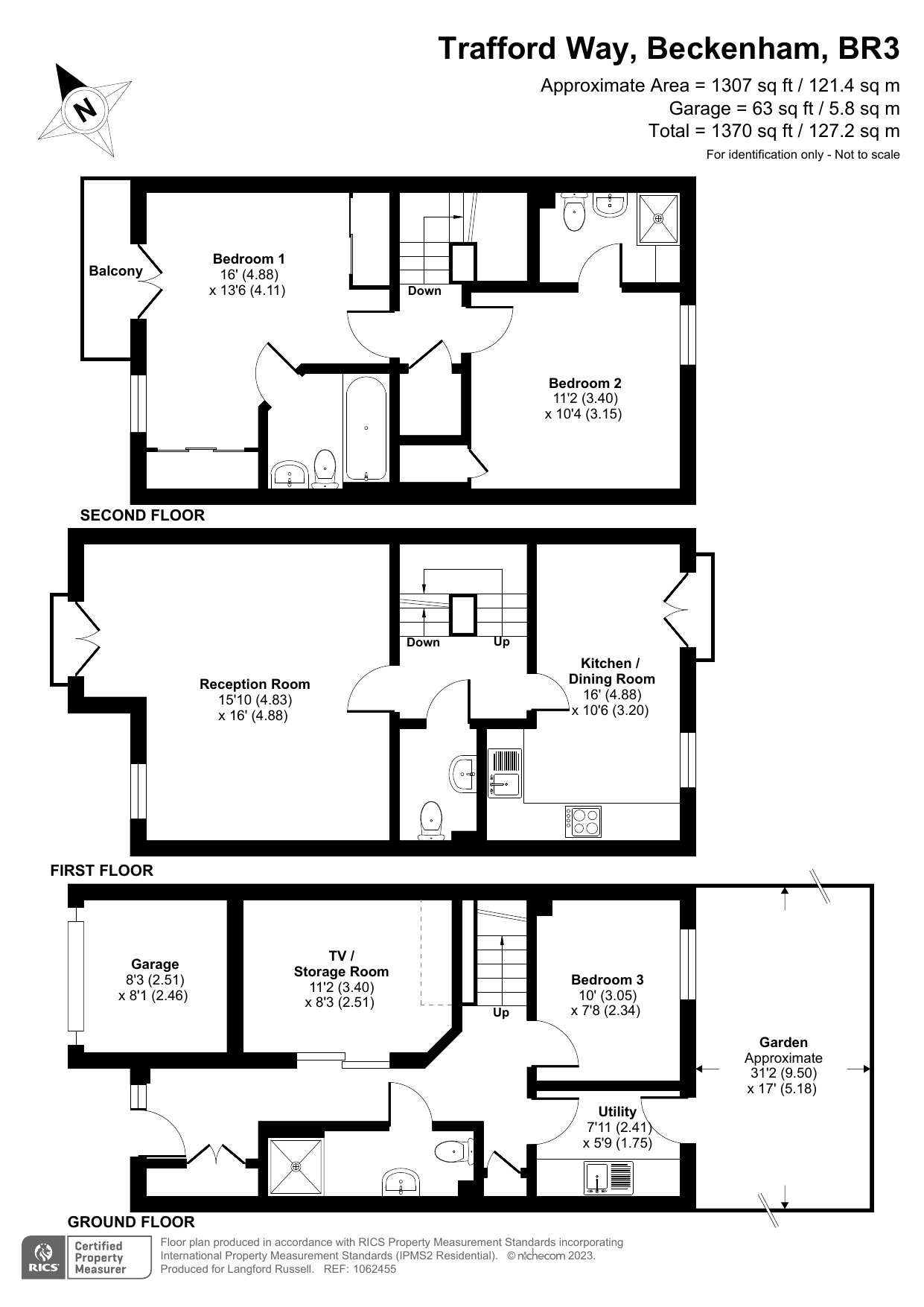
Offered to the market is this stunning three bedroom mid-terraced town house. Located in a popular development built in 2009 and close to many local amenities, this property is an ideal home.

Arranged over three floors, the ground floor comprises a good-sized study room, the third double bedroom, modern shower room and utility room that leads out to the well-maintained private garden.

On the first floor you will find one large reception room with Juliet balcony, a modern kitchen/dining room also with a Juliet balcony and fitted appliances including dishwasher and a useful WC.

The third and final floor comprises one large master bedroom with en-suite bathroom and private balcony and a further second double bedroom also with an en-suite shower room.

Further benefits include ample storage throughout and off street parking.

Trafford Way is a tucked away cul-de-sac located just off of Worsley Bridge Road, close to several mainline stations including New Beckenham offering services into London Bridge, Charing Cross and Cannon Street plus Beckenham Junction providing connections into London Victoria by train and Croydon by Tram and Beckenham Hill which connects to Kings Cross/St. Pancras. Worsley Bridge Primary School is within walking distance plus the property also resides within the catchment for the ever popular Harris Academy for boys and Girls. Beckenham High Street is also close by with its array of shops, bars and restaurants.

Energy Efficiency Rating B.

Offered Unfurnished
Available From 7th November
Energy Efficiency Rating - B
Council Tax Band - F
Deposit - £2,596
Holding Deposit Required – £519.23

All known suppliers for mobile and broadband services are available in this area.
Gas Central Heating & Mains Electric To check broadband and mobile phone coverage please visit Ofcom here ofcom.org.uk/phones-telecoms-and-internet/advice-for-consumers/advice/ofcom-checker

Talk to Eddie Youds from Langford Russell (Estate agents in Beckenham)

Beckenham Area Guide

Explore the areas we serve – from parks, entertainment and transport links, to shopping, eating and drinking.

Dive into property knowledge

Visit the AcornIntel knowledge-base, our library of articles to help you make sense of all things property, or send your questions to our panel of property experts.

Get your property valued

Looking to sell or let your property? Get a free property valuation from one of our experts.

Top