The Acorn Group is London’s largest multi-brand estate agency. We offer our clients the best brands, with the best people, in the best locations.

 

Close

£2,150 per month

Terraced House to rent - Walnut Tree Road, London, SE10

Comprising a generous reception room, kitchen diner, modern three piece bathroom suite, two good size double bedrooms and low maintenance private garden.

Additional benefits include residence permit parking on the street, original sash windows and period fireplaces.

Conveniently located, the apartment sits just 0.2 miles from Maze Hill Rail Station (eight minute walk according to Google maps) serving direct links to London Bridge (eleven minutes) Blackfriars and London Cannon Street in as little as seventeen minutes.

Situated nearby comes the Thames Path - a pleasant stroll along the river bank offering unique pubs and restaurants along the way, leading directly to Greenwich Town Centre in a matter of minutes, offering an array of bars, shops, restaurants, Cutty Sark DLR and the famous Greenwich Market.

Local Authority Royal Borough Of Greenwich Tax Band E
Energy Efficiency Rating D

Utilities not included
Deposit payable is £2480.76. A Holding Deposit of £496.15, or this property is available with our No Deposit Option, this is based on the advertised rent, this will be required to reserve this property. Min Term 12 months.

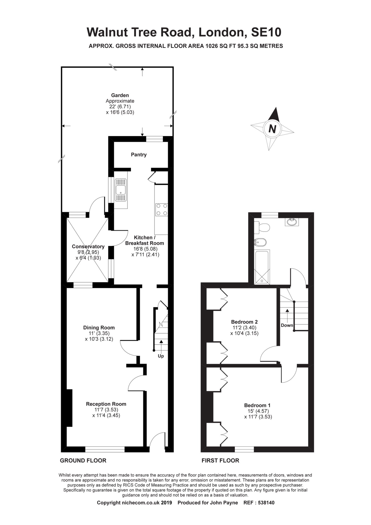
Garden Approx 22'(6.71) x 16'6 (5.03)
Conservatory 9'8 (2.95) x 6'4 (1.93)
Dinning Room 11'(3.35) x 10'3 (3.12)
Reception Room 11'7 (3.53) x 11'4(3.45)
Kitchen/Breakfast Room 16'8 (5.08) x 7'11(2.41)
Bedroom One 15' (4.57) x 11'7 (3.53)
Bedroom Two 11'2( 3.40) x 10'4 (3.15)

Broadband and Mobile Phone: Ofcom suggest that Ultrafast/ADSL/FTTP/SATELLITE broadband is available to this property and ??g Mobile signal may be available on some networks. Information regarding broadband options and phone signal can be obtained from the Ofcom broadband and mobile coverage checker. To check broadband and mobile phone coverage please visit Ofcom here ofcom.org.uk/phones-telecoms-and-internet/advice-for-consumers/advice/ofcom-checker

Talk to Luke McConville from John Payne (Estate agents in Greenwich East)

Area Guide

Explore the areas we serve – from parks, entertainment and transport links, to shopping, eating and drinking.

Dive into property knowledge

Visit the AcornIntel knowledge-base, our library of articles to help you make sense of all things property, or send your questions to our panel of property experts.

Get your property valued

Looking to sell or let your property? Get a free property valuation from one of our experts.

Top