The Acorn Group is London’s largest multi-brand estate agency. We offer our clients the best brands, with the best people, in the best locations.

 

Close

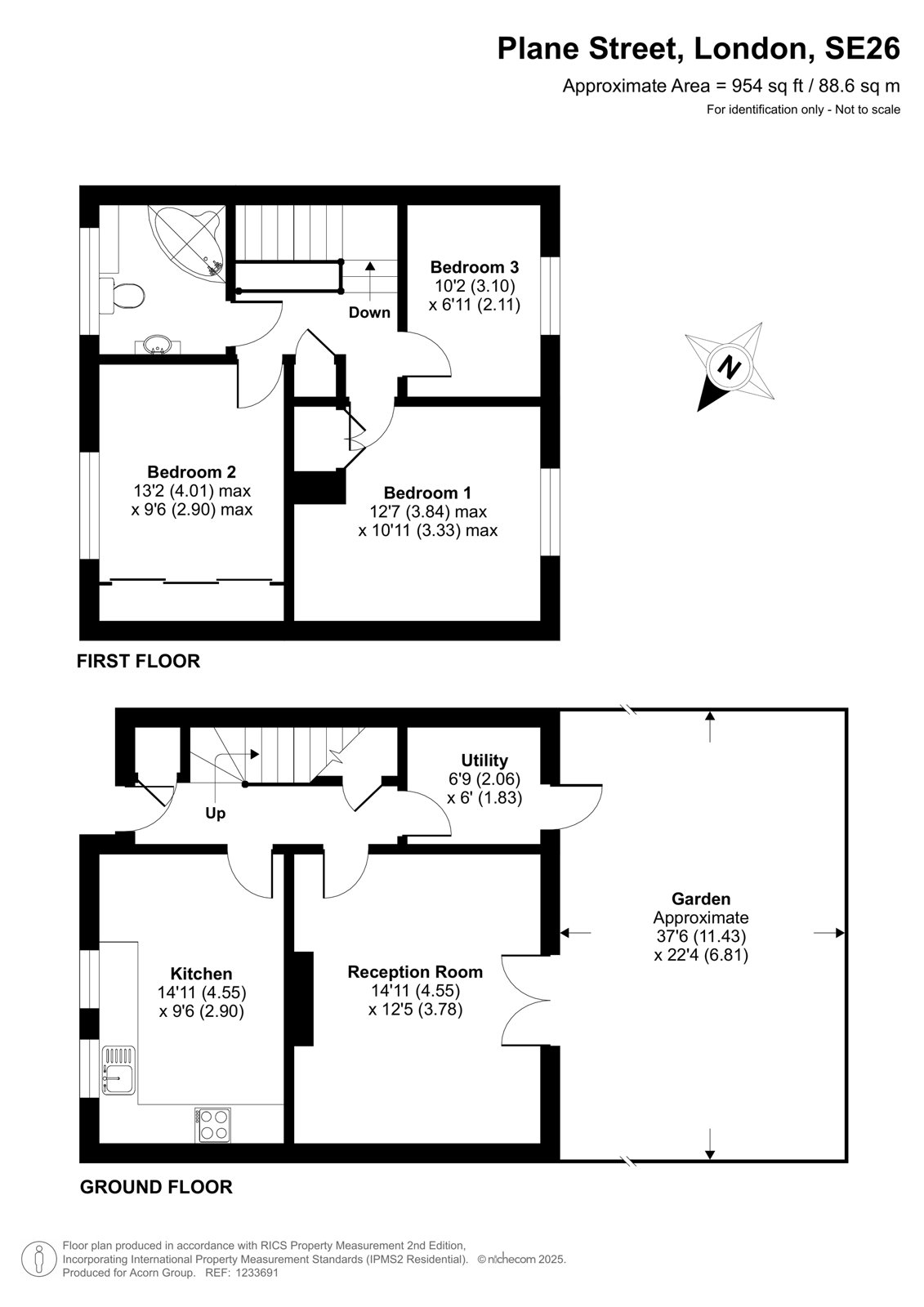
Asking price £500,000 freehold

Terraced House - Plane Street, SE26

This generously sized 3-bedroom mid-terraced property is an excellent opportunity for families and professionals. Offering spacious living with three double bedrooms, the home features a private rear garden, perfect for outdoor relaxation. The property also benefits from a convenient driveway, providing off-road parking for added ease.

Located in a highly desirable area, this home is in close proximity to excellent transport links, making commuting or accessing local amenities simple and stress-free. With its prime location, private garden, and driveway, this property combines comfort and convenience, making it the ideal place to call home.

Freehold
Council Tax Band: C
Energy Efficiency Rating: C

Talk to Harrison White from Acorn (Estate agents in Sydenham)

 

Use our calculator to work out potential mortgage repayments and stamp duty costs. Please note, these calculators are for general interest only and must not be relied on. Speak to our Mortgage Scout team for further information and advice. 

Powered by

Total Mortgage

£

Estimated Monthly Mortgage Payment

£

  • Powered by

Sydenham Area Guide

Explore the areas we serve – from parks, entertainment and transport links, to shopping, eating and drinking.

Dive into property knowledge

Visit the AcornIntel knowledge-base, our library of articles to help you make sense of all things property, or send your questions to our panel of property experts.

Get your property valued

Looking to sell or let your property? Get a free property valuation from one of our experts.

Top