The Acorn Group is London’s largest multi-brand estate agency. We offer our clients the best brands, with the best people, in the best locations.

 

Close

OIEO £425,000 freehold

Terraced House - Northcote Road, DA14

Offered to the market with a complete onward chain, Langford Russell are delighted to present this immaculate, two double bedroom period home, situated on a highly desirable road in Sidcup.

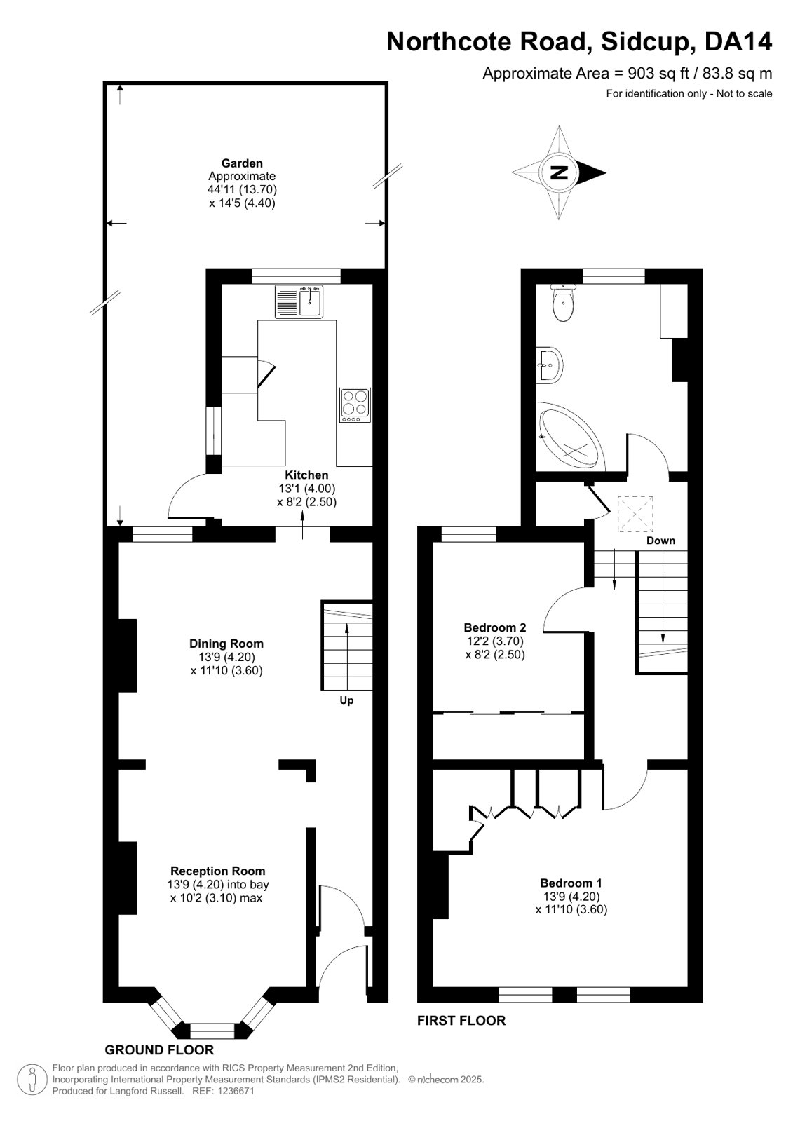
Internally, the property comprises; entrance hall, Extensive open plan living/dining room with feature fireplace and bay window, fitted kitchen with integrated appliances, overlooking the substantial rear garden, mostly laid to lawn with rear access. The first floor offers two spacious double bedrooms, both with extensive fitted wardrobe space, a modern family bathroom with corner bath, utility area within the bathroom and loft space.

The property has been maintained to a very high standard by the current owner and offers any perspective purchaser bundles of extension potential (Subject to obtaining relevant planning consents).

The location offers commuters walking distance to Sidcup Station & New Eltham (1.1 miles) giving purchasers easy access to London Bridge, Charing Cross, and Cannon Street. Families also benefit from an excellent school catchment area including; Longlands Primary, Dulverton Primary, Cleeve Park Secondary and Chislehurst & Sidcup Grammar schools and a range of other highly regarded schools in the area. The property is also within close proximity to local amenities, including an array of supermarkets and restaurants.

Viewing is highly recommended - To arrange a viewing, please contact Langford Russell directly.

Tenure - Freehold | Council Tax Band - D

Talk to Jack Power from Langford Russell (Estate agents in Sidcup)

 

Use our calculator to work out potential mortgage repayments and stamp duty costs. Please note, these calculators are for general interest only and must not be relied on. Speak to our Mortgage Scout team for further information and advice. 

Powered by

Total Mortgage

£

Estimated Monthly Mortgage Payment

£

  • Powered by

Sidcup Area Guide

Explore the areas we serve – from parks, entertainment and transport links, to shopping, eating and drinking.

Dive into property knowledge

Visit the AcornIntel knowledge-base, our library of articles to help you make sense of all things property, or send your questions to our panel of property experts.

Get your property valued

Looking to sell or let your property? Get a free property valuation from one of our experts.

Top