The Acorn Group is London’s largest multi-brand estate agency. We offer our clients the best brands, with the best people, in the best locations.

 

Close

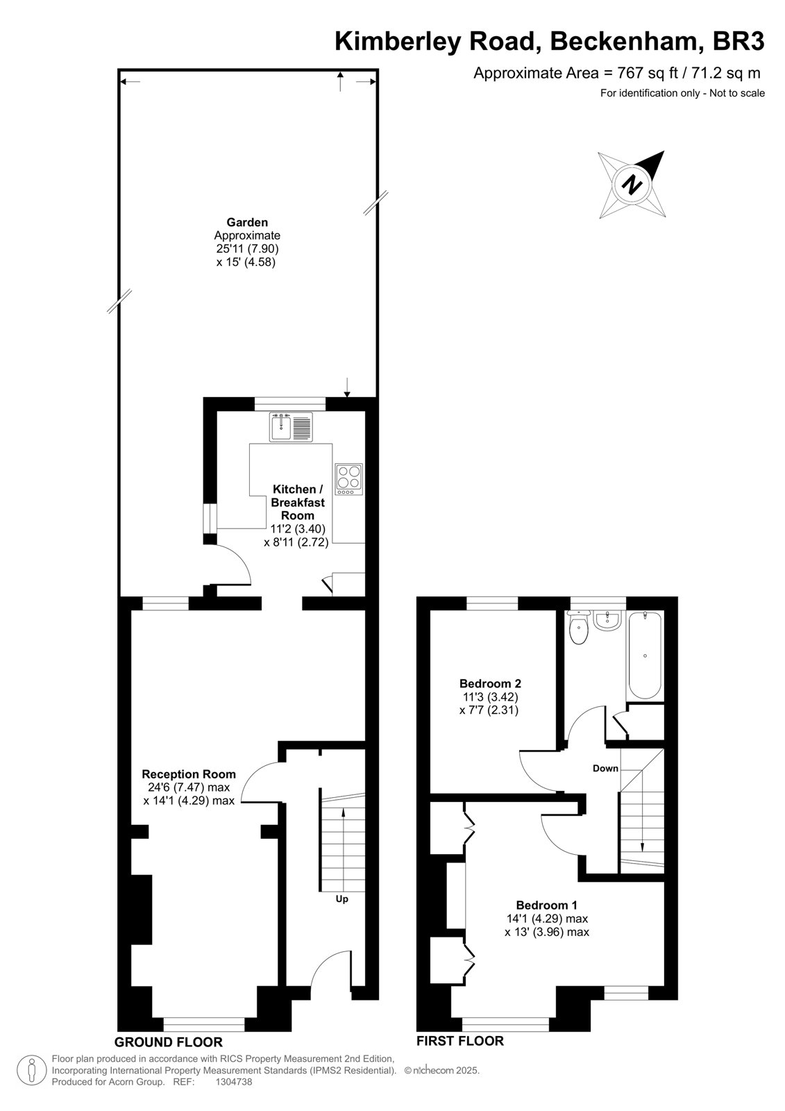
Asking price £375,000 freehold

Terraced House - Kimberley Road, BR3

Langford Russell are delighted to offer to the market this terraced family house.

Located within a quiet residential road featuring two bedrooms, through reception room, kitchen, bathroom and 30ft rear garden. Although the property requires modernisation throughout it would make a perfect starter home and offered chain free.

Situated in within easy reach of mainline stations, parks and local amenities.

Tenure - Freehold
Council Tax London Borough Of Bromley Tax Band - C
Energy Efficiency Rating - E

Talk to Eddie Youds from Langford Russell (Estate agents in Beckenham)

 

Use our calculator to work out potential mortgage repayments and stamp duty costs. Please note, these calculators are for general interest only and must not be relied on. Speak to our Mortgage Scout team for further information and advice. 

Powered by

Total Mortgage

£

Estimated Monthly Mortgage Payment

£

  • Powered by

Beckenham Area Guide

Explore the areas we serve – from parks, entertainment and transport links, to shopping, eating and drinking.

Dive into property knowledge

Visit the AcornIntel knowledge-base, our library of articles to help you make sense of all things property, or send your questions to our panel of property experts.

Get your property valued

Looking to sell or let your property? Get a free property valuation from one of our experts.

Top