The Acorn Group is London’s largest multi-brand estate agency. We offer our clients the best brands, with the best people, in the best locations.

 

Close

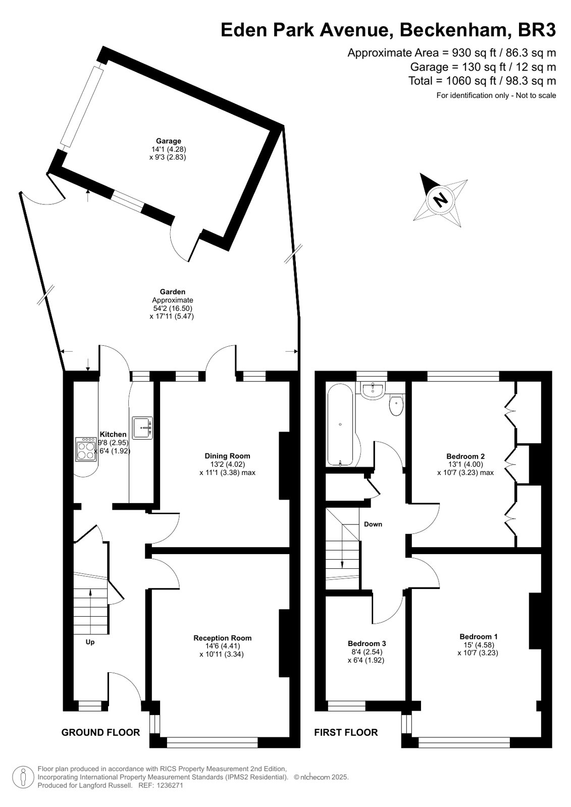
Asking price £600,000 freehold

Terraced House - Eden Park Avenue, BR3

Langford Russell are pleased to present new to the market this lovely terrace home in an ideal location.

The property boasts a generous living space with three well-proportioned bedrooms, perfect for a growing family or those who love to entertain guests. To the ground floor, there is a bright shaker style kitchen with ample storage and integrated appliances. The living room and dining room are generous sizes with access to the lovely garden with well-kept lawn and patio areas, perfecting for entertaining and al-fresco dining.

Upstairs there two large double bedrooms, one with fitted wardrobes and a further single bedroom, and to complete, a fully tiled main family bathroom.

Further benefits include a large garage with rear access, and parking at the rear, double glazing, gas central heating and ideal location. Situated within the Langley Park catchment area and close to many local amenities and transport links with Eden Park Station a short walk away.

A viewing is highly recommended.

Tenure - Freehold
Council Tax Band E
Energy Efficiency Rating E

Talk to Eddie Youds from Langford Russell (Estate agents in Beckenham)

 

Use our calculator to work out potential mortgage repayments and stamp duty costs. Please note, these calculators are for general interest only and must not be relied on. Speak to our Mortgage Scout team for further information and advice. 

Powered by

Total Mortgage

£

Estimated Monthly Mortgage Payment

£

  • Powered by

Beckenham Area Guide

Explore the areas we serve – from parks, entertainment and transport links, to shopping, eating and drinking.

Dive into property knowledge

Visit the AcornIntel knowledge-base, our library of articles to help you make sense of all things property, or send your questions to our panel of property experts.

Get your property valued

Looking to sell or let your property? Get a free property valuation from one of our experts.

Top