The Acorn Group is London’s largest multi-brand estate agency. We offer our clients the best brands, with the best people, in the best locations.

 

Close

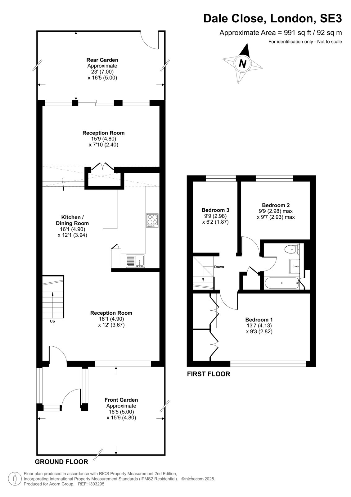
Asking price £750,000 freehold

Terraced House - Dale Close, SE3

Very well presented and spacious three bedroom extended Span house on this popular and quiet cul de sac just off the top end of Foxes Dale on the sought after Cator Estate. Only a short walk from the heart of Blackheath Village.

The house has been recently refurbished by the family that has lived there for over fifty years. This includes the installation of new wood flooring downstairs and redecoration throughout. Whilst some modernisation is still required in places, the house is in super condition and is ready to move into.

There is a single storey extension to the rear and a pretty garden. Blackheath Village is 10 minutes walk away, with its super array of shops, restaurants and bars, and a mainline railway station.

The house is accessible to a range of superb schools and is in the catchment area for the popular Brooklands Primary School.

The house is for sale Chain Free

Foxes Dale maintenance charge £600 a year

Chain Free!!

The Royal Borough of Greenwich - Council Tax Band - E
Energy Efficiency Rating - C

Talk to Richard O'Toole from John Payne (Estate agents in Blackheath)

 

Use our calculator to work out potential mortgage repayments and stamp duty costs. Please note, these calculators are for general interest only and must not be relied on. Speak to our Mortgage Scout team for further information and advice. 

Powered by

Total Mortgage

£

Estimated Monthly Mortgage Payment

£

  • Powered by

Blackheath Area Guide

Explore the areas we serve – from parks, entertainment and transport links, to shopping, eating and drinking.

Dive into property knowledge

Visit the AcornIntel knowledge-base, our library of articles to help you make sense of all things property, or send your questions to our panel of property experts.

Get your property valued

Looking to sell or let your property? Get a free property valuation from one of our experts.

Top