The Acorn Group is London’s largest multi-brand estate agency. We offer our clients the best brands, with the best people, in the best locations.

 

Close

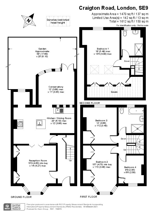
Asking price £850,000 freehold

Terraced House for sale - Craigton Road, SE9

A simply stunning example of an extended four bedroom Corbett house in the heart of Eltham Park, within a short walk of Eltham Station, Tudor Barn & the highly sought after Gordon Primary School.

The home has been incredibly well maintained by the current owners and is offered in immaculate order. Internal accommodation comprises; A welcoming entrance hall, large reception room with bay window that opens out in to the open plan kitchen/diner with bespoke kitchen including a central island, and separate Larder. The kitchen also leads out on to a bespoke rear extension overlooking the homes impressive garden which is mainly laid to lawn but also has two separate decking areas, great for entertaining in the summer months.

To the first floor you will find three well-proportioned double bedrooms with fitted wardrobes and the homes modern family bathroom. You will also find the stairs up to the loft extension which is set up an impressive principal bedroom with en-suite.

Further benefits include; off street parking for two cars, fitted shutters throughout, a stunning brick façade, double glazing and central heating.

Craigton Road is one of SE9’s most sought after roads and the property is just 0.3 miles from Eltham Station which offers fast and frequent direct services into London Bridge, Waterloo East, Cannon Street, Charing Cross & London Victoria. Eltham High Street can be found a short distance away and offers comprehensive shopping, bars, restaurants and the recently built Vue cinema. There is also a variety of locally renowned shops including Westmount Café & Eltham DIY available on Westmount Road & The Tudor Barn, a popular local gastro pub is also within reasonable distance just off of Well Hall Road.

Energy Efficiency Rating D.

Talk to Oliver Henness from John Payne (Estate agents in Eltham)

 

Use our calculator to work out potential mortgage repayments and stamp duty costs. Please note, these calculators are for general interest only and must not be relied on. Speak to our Mortgage Scout team for further information and advice. 

Powered by

Total Mortgage

£

Estimated Monthly Mortgage Payment

£

  • Powered by

Eltham Area Guide

Explore the areas we serve – from parks, entertainment and transport links, to shopping, eating and drinking.

Dive into property knowledge

Visit the AcornIntel knowledge-base, our library of articles to help you make sense of all things property, or send your questions to our panel of property experts.

Get your property valued

Looking to sell or let your property? Get a free property valuation from one of our experts.

Top