The Acorn Group is London’s largest multi-brand estate agency. We offer our clients the best brands, with the best people, in the best locations.

 

Close

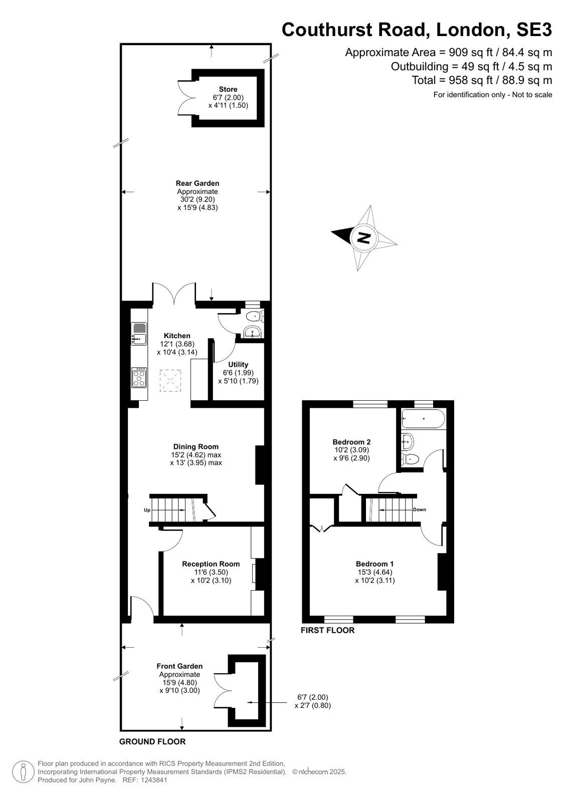
Asking price £700,000 freehold

Terraced House - Couthurst Road, SE3

Situated within the ever-popular Rectory fields conservation area, is this truly stunning, two-bedroom, Victorian cottage.

Internally the property is offered in stunning condition throughout and comprises, a cozy front reception room with feature fireplace. There is a second reception room which extends into a sleek, modern kitchen, which benefits from high end appliances and access to a handy utility room. On the ground floor you will also find a WC. The first floor consists of two double sized bedrooms and a three-piece family bathroom suite. To the rear of the property is a landscaped, 30-foot East facing garden.

Further benefits of note include double glazing and plantation shutters to the front of the house.

Couthurst Road is located just moments from the Blackheath Royal Standard, which offers a variety of shops, including an M&S Food Hall, independent cafes, and a library. Blackheath Village and the heath are also nearby and boast an array of pubs, bars and restaurants. You are also served by many superb transport links from Westcombe Park Railway and bus services into North Greenwich. The property is also, within the catchment of OFSTED Outstanding Primary Schools, Invicta & Sherington, as well as Leigh Academy for Secondary education.

Talk to Will McElligott from John Payne (Estate agents in Blackheath Standard)

 

Use our calculator to work out potential mortgage repayments and stamp duty costs. Please note, these calculators are for general interest only and must not be relied on. Speak to our Mortgage Scout team for further information and advice. 

Powered by

Total Mortgage

£

Estimated Monthly Mortgage Payment

£

  • Powered by

Blackheath Standard Area Guide

Explore the areas we serve – from parks, entertainment and transport links, to shopping, eating and drinking.

Dive into property knowledge

Visit the AcornIntel knowledge-base, our library of articles to help you make sense of all things property, or send your questions to our panel of property experts.

Get your property valued

Looking to sell or let your property? Get a free property valuation from one of our experts.

Top