The Acorn Group is London’s largest multi-brand estate agency. We offer our clients the best brands, with the best people, in the best locations.

 

Close

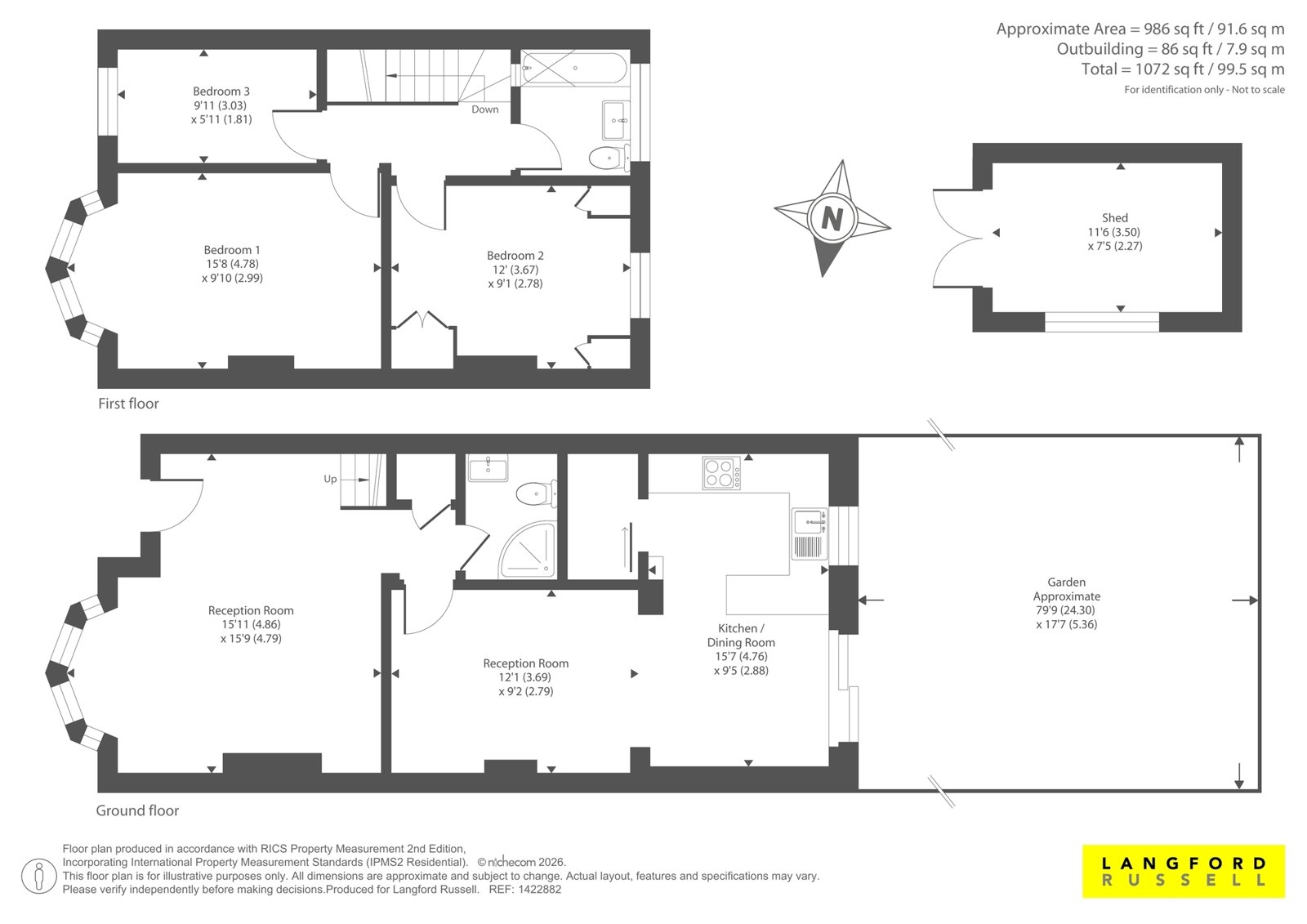
Asking price £499,999 freehold

Terraced House for sale - Brookmead Way, BR5

Situated on the popular Brookmead Way in Orpington, this well-presented three-bedroom mid-terraced home offers generous living accommodation, a private rear garden with rear access and off street parking via a driveway to the front, which also benefits from an EV charging point.

The property also features an unconverted loft space, which subject to the usual planning permissions, offers excellent potential for conversion, providing buyers with the opportunity to further increase the living accommodation if desired.

Internally, the ground floor accommodation begins with a welcoming entrance hall leading through to a bright bay-fronted reception room, creating a comfortable and inviting living space filled with natural light.

To the rear of the property is a spacious dining room, providing an excellent space for family dining and entertaining. The dining area flows openly through to the kitchen, creating a sociable and practical layout that works well for modern living. The kitchen itself offers a range of wall and base units, generous worktop space and views over the rear garden.

Completing the ground floor accommodation is a modern shower room with WC, offering additional convenience and flexibility for family living.

Upstairs, the first floor comprises three well-proportioned bedrooms. The principal bedroom is positioned at the front of the property and benefits from a wide bay window which enhances the sense of space and natural light. The second bedroom overlooks the rear garden and provides comfortable double accommodation, while the third bedroom offers a versatile space that works well as a guest bedroom, nursery or home office.

The accommodation is completed by a family bathroom.

Externally, the property enjoys a rear garden measuring approximately 79ft, providing an excellent outdoor space for families. A patio seating area is located directly to the rear of the property, ideal for outdoor dining, while a second patio area is positioned at the end of the garden alongside a useful shed. The garden also benefits from rear access, adding further practicality.

Brookmead Way is conveniently located for a variety of local amenities and excellent transport links. St Mary Cray Station is approximately 0.9 miles away, providing regular services into central London, making it ideal for daily commuters. Orpington Station is around 1.3 miles away and offers fast and frequent services to London Bridge in approximately 15 minutes, as well as connections to Charing Cross, Cannon Street and Victoria, making it a highly desirable station for those travelling into the City and West End.

The property is also within easy reach of Orpington High Street and The Nugent Shopping Park, which offers a wide range of well-known retailers, supermarkets and restaurants. For those commuting by car, the nearby A20 provides direct access towards central London and Kent, while also connecting easily to the M25 motorway, offering convenient links to wider road networks.

The area is particularly popular with families due to the range of well regarded schools nearby. Perry Hall Primary School is within approximately 0.6 miles of the property, while Poverest Primary School is around 1.1 miles away, both easily accessible on foot. Secondary education is also well catered for, with St Olave’s Grammar School located approximately 1.7 miles away and Newstead Wood School around 2.7 miles from the property.


Tenure Freehold
Local Authority Bromley Council Tax Band - D
Energy Efficiency Rating C

Talk to Oliver Pettman from Langford Russell (Estate agents in Orpington)

 

Use our calculator to work out potential mortgage repayments and stamp duty costs. Please note, these calculators are for general interest only and must not be relied on. Speak to our Mortgage Scout team for further information and advice. 

Powered by

Total Mortgage

£

Estimated Monthly Mortgage Payment

£

  • Powered by

Orpington Area Guide

Explore the areas we serve – from parks, entertainment and transport links, to shopping, eating and drinking.

Dive into property knowledge

Visit the AcornIntel knowledge-base, our library of articles to help you make sense of all things property, or send your questions to our panel of property experts.

Get your property valued

Looking to sell or let your property? Get a free property valuation from one of our experts.

Top