The Acorn Group is London’s largest multi-brand estate agency. We offer our clients the best brands, with the best people, in the best locations.

 

Close

OIEO £825,000 freehold

Semi-detached House - Wren Road, DA14

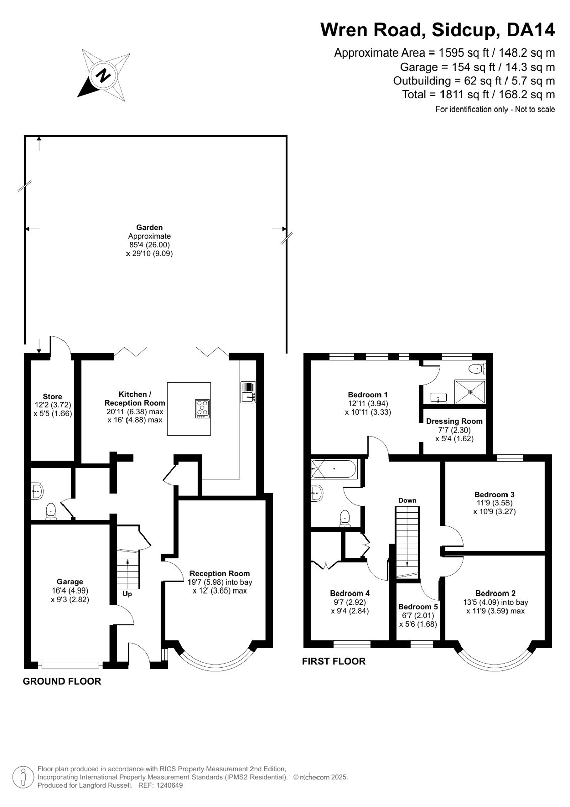
Langford Russell are pleased to offer to the market a vastly extended, five bedroom semi-detached family home, situated on a highly desirable road in Sidcup.

Internally, the property comprises; spacious entrance hall, front reception room with bay window, downstairs W/C with study space and an extensive open-plan, fully fitted kitchen/diner, with central island, shaker style cupboards, integrated appliances and bi-folding doors overlooking the substantial rear garden, mostly laid to lawn with decked area.

Across the first floor are three substantial double bedrooms, a further single bedroom, a large master bedroom, with newly finished en-suite shower room and dressing area, and the modern family bathroom, with three piece suite and shower over bath.

Further benefits include; Off-street parking for multiple vehicles, integral garage, additional store, and solar panelling.

The property has been thoughtfully renovated by the current owners and is offered in move-in ready condition.

Located just 0.7 miles from Albany Park and 0.9 miles from Sidcup Station, with excellent services into London Bridge, Charing Cross and Cannon Street. Sidcup High Street is just a short walk away, providing an array of bars, shops and eateries.

An abundance of schooling facilities are within close proximity, including; Chislehurst & Sidcup Grammar, Townley Grammar, Dartford Grammar, Merton Court Prep, Benedict House Prep, and Birkbeck Primary.

Tenure – Freehold

Talk to Jack Power from Langford Russell (Estate agents in Sidcup)

 

Use our calculator to work out potential mortgage repayments and stamp duty costs. Please note, these calculators are for general interest only and must not be relied on. Speak to our Mortgage Scout team for further information and advice. 

Powered by

Total Mortgage

£

Estimated Monthly Mortgage Payment

£

  • Powered by

Sidcup Area Guide

Explore the areas we serve – from parks, entertainment and transport links, to shopping, eating and drinking.

Dive into property knowledge

Visit the AcornIntel knowledge-base, our library of articles to help you make sense of all things property, or send your questions to our panel of property experts.

Get your property valued

Looking to sell or let your property? Get a free property valuation from one of our experts.

Top