The Acorn Group is London’s largest multi-brand estate agency. We offer our clients the best brands, with the best people, in the best locations.

 

Close

Guide price £730,000 freehold

Semi-detached House - Tubbenden Drive, BR6

**Guide Price £730,000 to £750,000**

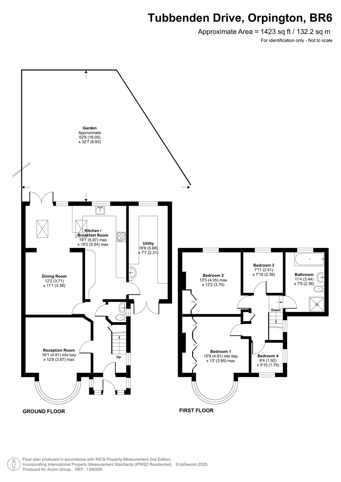
Langford Russell are delighted to present this superb four-bedroom family home located in the highly sought-after Tubbenden area on the southern side of Orpington. The property is within close proximity to a number of highly regarded schools and is just a short distance from Orpington mainline station, making it perfect for commuters and families alike.

Internally, you are welcomed with a bright entrance hall leading into the reception room with a charming bay window which floods the room with natural light. To the rear, the property has been extended to create a superb open-plan dining area that flows seamlessly into the modern kitchen/breakfast room. This well-equipped kitchen enjoys views over the rear garden and offers ample storage and workspace, making it ideal for both everyday family meals and entertaining. The downstairs accommodation is completed with a separate utility room and WC.

The first-floor landing provides access to four well-proportioned bedrooms, one of which is currently used as a home office - perfect for those working remotely. A four-piece family bathroom completes the upstairs accommodation.

The front of the property benefits from a driveway offering off-street parking. The original garage has been thoughtfully converted into a utility room/workshop, which is accessible from the kitchen.

To the rear, you have a well-maintained garden which includes both a beautiful patio perfect for entertaining and alfresco dining as well as a lovely lawn area.

Orpington is a thriving suburban town within the M25 with many people drawn to the area for the reputable schools and the railway stations that can transport you into London in as little as 17 minutes. Orpington station is three quarters of a mile away. Sought after schools such as Darrick Wood and Newstead grammar school for girls are 0.7 5miles and 0.35 miles away respectively. Tubbenden Primary School is less than quarter of a mile away. The town centre has a comprehensive range of shops and facilities including the Walnuts Shopping Centre and Odeon cinema. Sports facilities are also well catered for with the Walnuts Leisure Centre, golf courses, football and rugby clubs all within the area. You will also find a Waitrose store a short walk away and two doctors surgeries. The Nugent Retail Park is also close by with electrical superstores, furniture shops and DIY centres along the Sevenoaks Way. Shopping centres at Bluewater and Bromley can also be found within 10 miles drive or bus ride.

Freehold
London Borough of Bromley - Tax Band: E
Energy Efficiency Rating: D

Talk to Oliver Pettman from Langford Russell (Estate agents in Orpington)

 

Use our calculator to work out potential mortgage repayments and stamp duty costs. Please note, these calculators are for general interest only and must not be relied on. Speak to our Mortgage Scout team for further information and advice. 

Powered by

Total Mortgage

£

Estimated Monthly Mortgage Payment

£

  • Powered by

Orpington Area Guide

Explore the areas we serve – from parks, entertainment and transport links, to shopping, eating and drinking.

Dive into property knowledge

Visit the AcornIntel knowledge-base, our library of articles to help you make sense of all things property, or send your questions to our panel of property experts.

Get your property valued

Looking to sell or let your property? Get a free property valuation from one of our experts.

Top