The Acorn Group is London’s largest multi-brand estate agency. We offer our clients the best brands, with the best people, in the best locations.

 

Close

Guide price £725,000 freehold

Semi-detached House for sale - The Park, DA14

** GUIDE PRICE £725,000 - £750,000 **

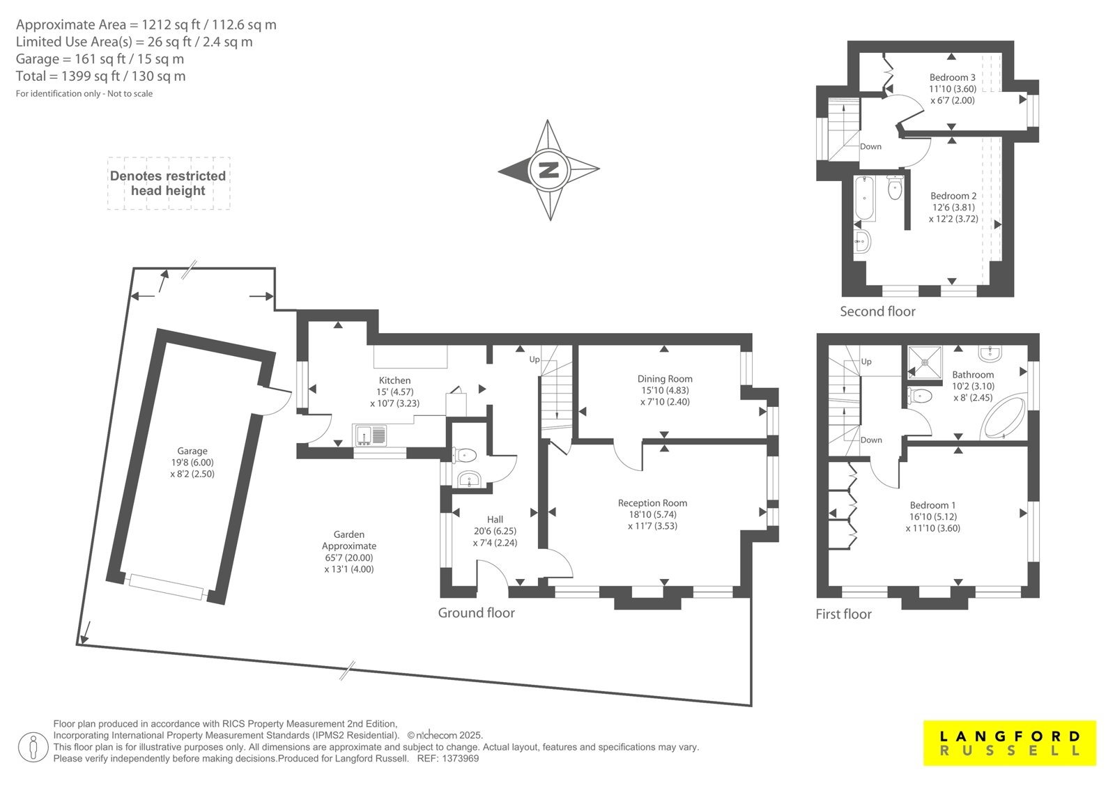
Langford Russell are delighted to offer to the DA14 market this, chain free charming three bedroom two-bathroom period home, measuring 1212 square feet, this unique home is steeped in history, offering contemporary design and luxurious living.

Beautifully presented the accommodation comprises a bright and airy kitchen, reception room, and dining room. A main bedroom with built in wardrobe, a further two bedrooms on the third floor, one with a toilet, bath, and sink. There is also a family bathroom and a stunning wrap around garden space. This property also benefits from high ceilings throughout, garage and potential to extend.

The property is conveniently located just 0.8 miles from Sidcup Station, offering commuters fast and direct links into London. Ideally located for highly regarded schools including Chislehurst and Sidcup Grammar, Townley Grammar, and respected independents such as Merton Court, West Lodge Prep and Farrington’s — this location offers outstanding educational options. Sidcup High Street is also a short walk away, providing an array of shops, eateries, and amenities.

This property isn't to be missed, please get in contact today to arrange your viewing on 0203 861 0444!

Freehold
London Borough of Bexley - Council Tax Band: F
Energy Efficiency Rating: D

Talk to Jack Power from Langford Russell (Estate agents in Sidcup)

 

Use our calculator to work out potential mortgage repayments and stamp duty costs. Please note, these calculators are for general interest only and must not be relied on. Speak to our Mortgage Scout team for further information and advice. 

Powered by

Total Mortgage

£

Estimated Monthly Mortgage Payment

£

  • Powered by

Sidcup Area Guide

Explore the areas we serve – from parks, entertainment and transport links, to shopping, eating and drinking.

Dive into property knowledge

Visit the AcornIntel knowledge-base, our library of articles to help you make sense of all things property, or send your questions to our panel of property experts.

Get your property valued

Looking to sell or let your property? Get a free property valuation from one of our experts.

Top