The Acorn Group is London’s largest multi-brand estate agency. We offer our clients the best brands, with the best people, in the best locations.

 

Close

OIEO £750,000 freehold

Semi-detached House for sale - Sydney Road, DA14

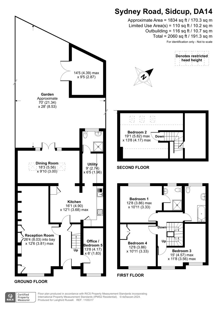
Offered to the market in immaculate order throughout, Langford Russell are delighted to present a substantial five double bedroom semi-detached house, situated on a highly sought after road in Sidcup.

Internally, the property comprises; a spacious entrance hall, bright & airy main reception room with built in storage space, fully fitted kitchen with separate utility room leading to a downstairs shower room and a second reception room currently used for dining, with French doors overlooking the rear garden.

Across the first floor is a substantial master bedroom with en-suite shower room, two further well-proportioned bedrooms and large family bathroom, with three piece suite and shower over bath. To the second floor, is a further double bedroom and access to ample eave storage.

Further benefits include; downstairs office space which could also double as a fifth bedroom, off-street parking for multiple vehicles and a well-maintained rear garden laid to lawn, with an additional outbuilding.

Excellent schools are within close proximity including; Longlands Primary School, Birkbeck Primary School, Chislehurst and Sidcup Grammar School and Cleeve Park School.

Located just 1.0 mile away from Sidcup Station, and 1.2 miles from New Eltham station with excellent services into London Bridge, Charing Cross and Cannon Street.

Sidcup High Street offers an array of shops, bars, and restaurants.

Tenure - Freehold | Bexley Council Tax Band - E | Energy Efficiency Rating - D

Talk to Jack Power from Langford Russell (Estate agents in Sidcup)

 

Use our calculator to work out potential mortgage repayments and stamp duty costs. Please note, these calculators are for general interest only and must not be relied on. Speak to our Mortgage Scout team for further information and advice. 

Powered by

Total Mortgage

£

Estimated Monthly Mortgage Payment

£

  • Powered by

Sidcup Area Guide

Explore the areas we serve – from parks, entertainment and transport links, to shopping, eating and drinking.

Dive into property knowledge

Visit the AcornIntel knowledge-base, our library of articles to help you make sense of all things property, or send your questions to our panel of property experts.

Get your property valued

Looking to sell or let your property? Get a free property valuation from one of our experts.

Top