The Acorn Group is London’s largest multi-brand estate agency. We offer our clients the best brands, with the best people, in the best locations.

 

Close

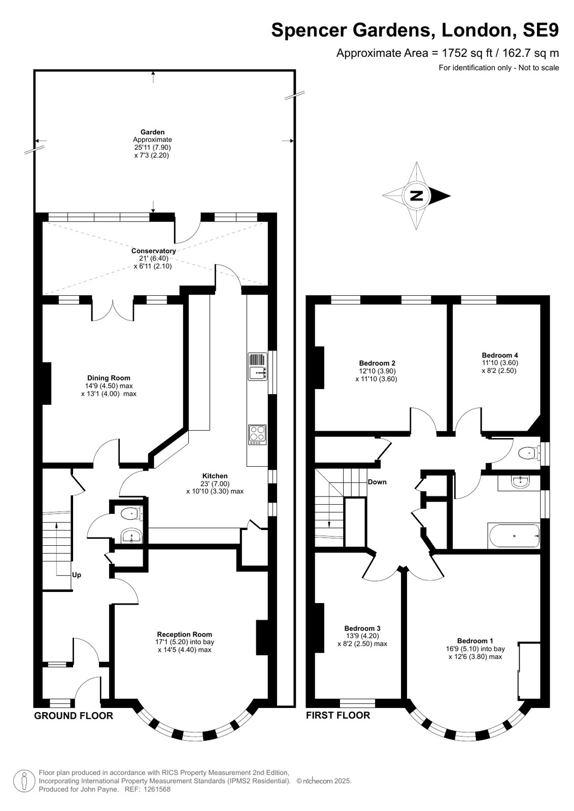
Guide price £700,000 freehold

Semi-detached House for sale - Spencer Gardens, SE9

** GUIDE PRICE £700,000 - £750,000 **

Known for their size and character, is this substantial four-bedroom Edwardian semi-detached home located on Spencer Gardens, SE9, centrally located to benefit from all of Eltham’s amenities, most notably the station and high street!

One of only a handful that has off street parking for not just one car, but two! Internally the home boasts circa 1750sqft of space which includes two large reception rooms, a recently reconfigured kitchen with new units and plenty of spaces for appliances, conservatory, ground floor W/C, Four double bedrooms, a family bathroom & separate W/C, and plenty of storage throughout. There is still plenty of opportunity to make this home even bigger should you wish with a ground floor rear extension, or loft extension subject to the necessary planning permissions. A really exciting opportunity is available hear, to own a very popular style home which bundles of potential!

The garden benefits from a western aspect providing plenty of afternoon sun & can be access via the conservatory. There is a large, decked area which is perfect for garden furniture, then a couple of steps down to a large lawn and mature shrubs.

There is also side access that provides garden/rear access from the front. Further benefits include central heating & double glazing.

The property is positioned within 0.2miles of Eltham Station (4 minutes’ walk!) which offers fast and frequent direct services into London Bridge, Waterloo East, Cannon Street, Charing Cross & London Victoria. Eltham High Street can be found a short distance away and offers comprehensive shopping, bars, restaurants and the recently built Vue cinema. There is also a variety of locally renowned shops available on Well Hall Road. The Tudor Barn is also within reasonable distance, also just off Well Hall Road.

If schools are high up on your list, then this house is perfect for you as a selection of highly regarded primary schools are close by including Gordon Primary School, Deansfield Primary School, Eltham CofE Primary School & St Marys Catholic Primary School. There is also a choice of secondary Schools nearby including St Thomas More Catholic School, Stationers Crown Woods School, Eltham Hill School for Girls & Harris Academy Greenwich (Ofsted Outstanding).

The Royal Borough of Greenwich - Council Tax Band - F
Energy Efficiency Rating - D

Talk to Oliver Henness from John Payne (Estate agents in Eltham)

 

Use our calculator to work out potential mortgage repayments and stamp duty costs. Please note, these calculators are for general interest only and must not be relied on. Speak to our Mortgage Scout team for further information and advice. 

Powered by

Total Mortgage

£

Estimated Monthly Mortgage Payment

£

  • Powered by

Eltham Area Guide

Explore the areas we serve – from parks, entertainment and transport links, to shopping, eating and drinking.

Dive into property knowledge

Visit the AcornIntel knowledge-base, our library of articles to help you make sense of all things property, or send your questions to our panel of property experts.

Get your property valued

Looking to sell or let your property? Get a free property valuation from one of our experts.

Top