The Acorn Group is London’s largest multi-brand estate agency. We offer our clients the best brands, with the best people, in the best locations.

 

Close

OIEO £675,000 freehold

Semi-detached House for sale - Rochester Way, SE3

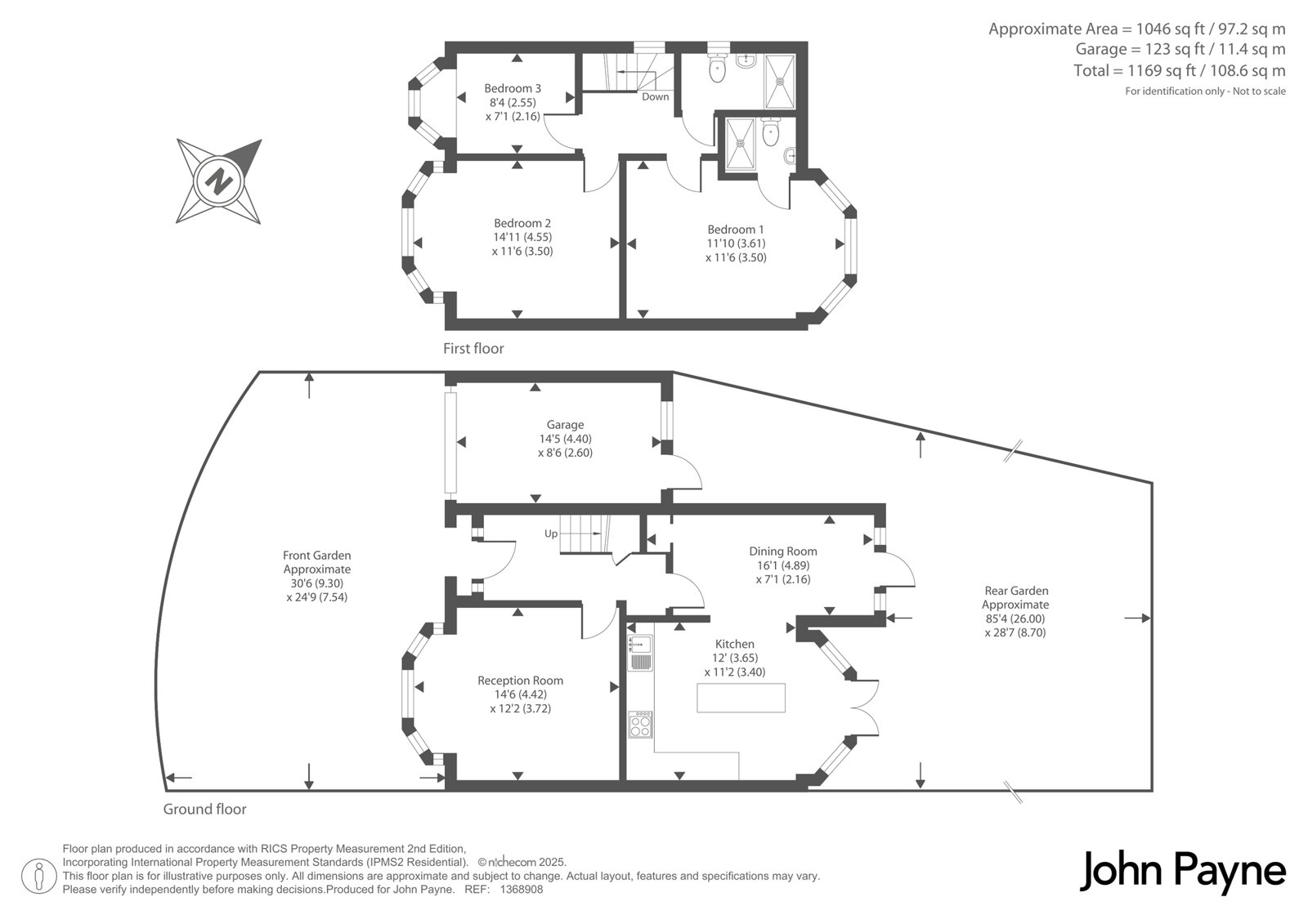
John Payne are delighted to present this beautifully presented 1930s semi-detached family home, ideally located on the ever-popular Rochester Way in SE3. Offering over 1,160 sq. ft. of internal space including the garage, this bright and spacious property seamlessly blends period charm with modern finishes.

The ground floor comprises a welcoming entrance hallway leading to a spacious reception room with a feature bay window, perfect for relaxing or entertaining. To the rear, the property opens up into a stylish open-plan kitchen and dining area which is a real highlight of the home. The contemporary kitchen is fitted with sleek cabinetry, marble-effect worktops, integrated appliances, and a breakfast island, all overlooking the large rear garden via French doors that flood the space with natural light.

The first floor offers three well-proportioned bedrooms, including a generous master bedroom with bay windows and ensuite suite, finishing with a modern family shower room decorated to a high standard.
To the front, the property benefits from a driveway and attached garage, providing ample storage or off-street parking. The rear garden, approximately 85 ft in length, offers a peaceful retreat with plenty of space for outdoor dining and family activities.

Situated within easy reach of Eltham, Kidbrooke, and Blackheath, the property enjoys excellent transport links into central London via Kidbrooke and Eltham stations, as well as convenient access to the A2. There are a range of local amenities, green open spaces, and well-regarded schools nearby, making this a superb home for families and commuters alike.

The Royal Borough of Greenwich - Council Tax Band - D
Energy Efficiency Rating - D

Talk to Will McElligott from John Payne (Estate agents in Blackheath Standard)

 

Use our calculator to work out potential mortgage repayments and stamp duty costs. Please note, these calculators are for general interest only and must not be relied on. Speak to our Mortgage Scout team for further information and advice. 

Powered by

Total Mortgage

£

Estimated Monthly Mortgage Payment

£

  • Powered by

Blackheath Standard Area Guide

Explore the areas we serve – from parks, entertainment and transport links, to shopping, eating and drinking.

Dive into property knowledge

Visit the AcornIntel knowledge-base, our library of articles to help you make sense of all things property, or send your questions to our panel of property experts.

Get your property valued

Looking to sell or let your property? Get a free property valuation from one of our experts.

Top