The Acorn Group is London’s largest multi-brand estate agency. We offer our clients the best brands, with the best people, in the best locations.

 

Close

Guide price £850,000 freehold

Semi-detached House for sale - Riefield Road, SE9

** GUIDE PRICE £850 000 to £875 000 **

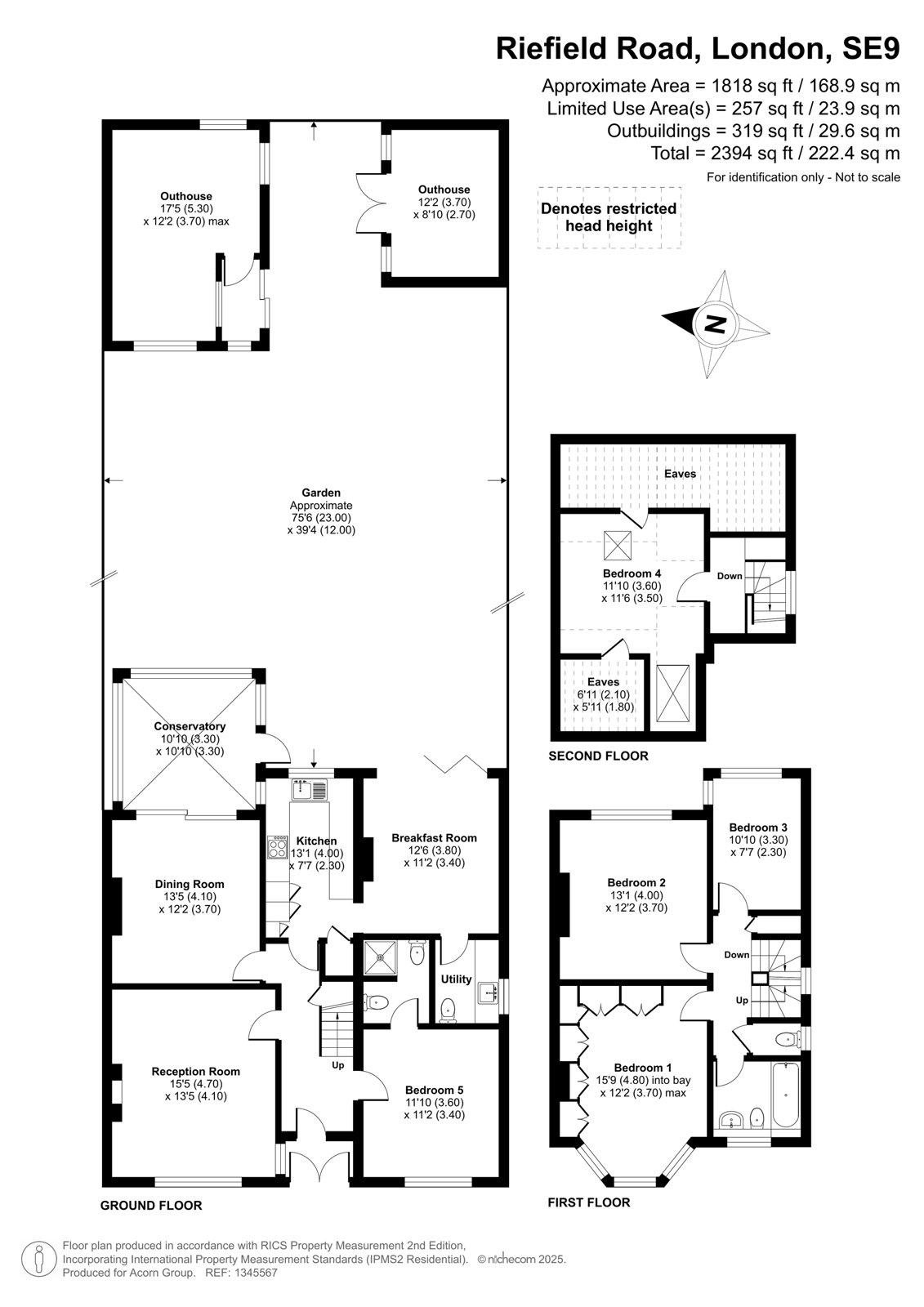
Positioned on a desirable residential road in the ever-popular Eltham Heights, this extended 1930s semi-detached home offers exceptional space throughout via it’s well thought out, family orientated layout.

Arranged over three floors, the property now boasts five bedrooms and two bathrooms, thoughtfully extended to include a ground floor side extension, conservatory, and a loft conversion.

Step inside through the porch into a welcoming entrance hall, leading to two generous reception rooms and a separate kitchen that opens out to a light-filled breakfast room with bi-fold doors overlooking the garden. The ground floor also features a utility room and a fifth bedroom with en suite, offering versatility as a guest suite, additional reception room, home office or playroom.

On the first floor, you’ll find three well-proportioned bedrooms and a modern family bathroom, while stairs lead to the loft-converted fifth bedroom.

To the rear, the secluded and mature east-facing garden is a true highlight. Lovingly maintained by the current owners, it features a decked seating area, two large outhouses (one currently used as a home gym), and a covered pergola, providing the perfect setting for year-round outdoor enjoyment—rain or shine.

There is also ample off street parking!
Falconwood Station is 0.3 miles away and offers direct access to London Bridge, Waterloo East, Charing Cross & Cannon Street & London Victoria. Changes are also possible at Lewisham for the DLR as well as New Cross for the East London Line. The A2 & A20 are both also within reasonable distance providing access to and from London, and out towards the Kent countryside and coastal towns.

There are also several highly regarded primary and secondary schools within the area.

This is a fantastic opportunity to secure a spacious and well-appointed family home in one of Eltham’s most desirable locations.

Tenure – Freehold
Energy Efficiency Rating D
Council Tax Band F

Talk to Oliver Henness from John Payne (Estate agents in Eltham)

 

Use our calculator to work out potential mortgage repayments and stamp duty costs. Please note, these calculators are for general interest only and must not be relied on. Speak to our Mortgage Scout team for further information and advice. 

Powered by

Total Mortgage

£

Estimated Monthly Mortgage Payment

£

  • Powered by

Eltham Area Guide

Explore the areas we serve – from parks, entertainment and transport links, to shopping, eating and drinking.

Dive into property knowledge

Visit the AcornIntel knowledge-base, our library of articles to help you make sense of all things property, or send your questions to our panel of property experts.

Get your property valued

Looking to sell or let your property? Get a free property valuation from one of our experts.

Top