The Acorn Group is London’s largest multi-brand estate agency. We offer our clients the best brands, with the best people, in the best locations.

 

Close

Asking price £675,000 freehold

Semi-detached House for sale - Red Oak Close, BR6

This beautifully presented three-bedroom semi-detached family home is located in a peaceful close within a highly desirable part of Locksbottom in the catchment for Darrick Wood School and walking distance to Orpington Station.

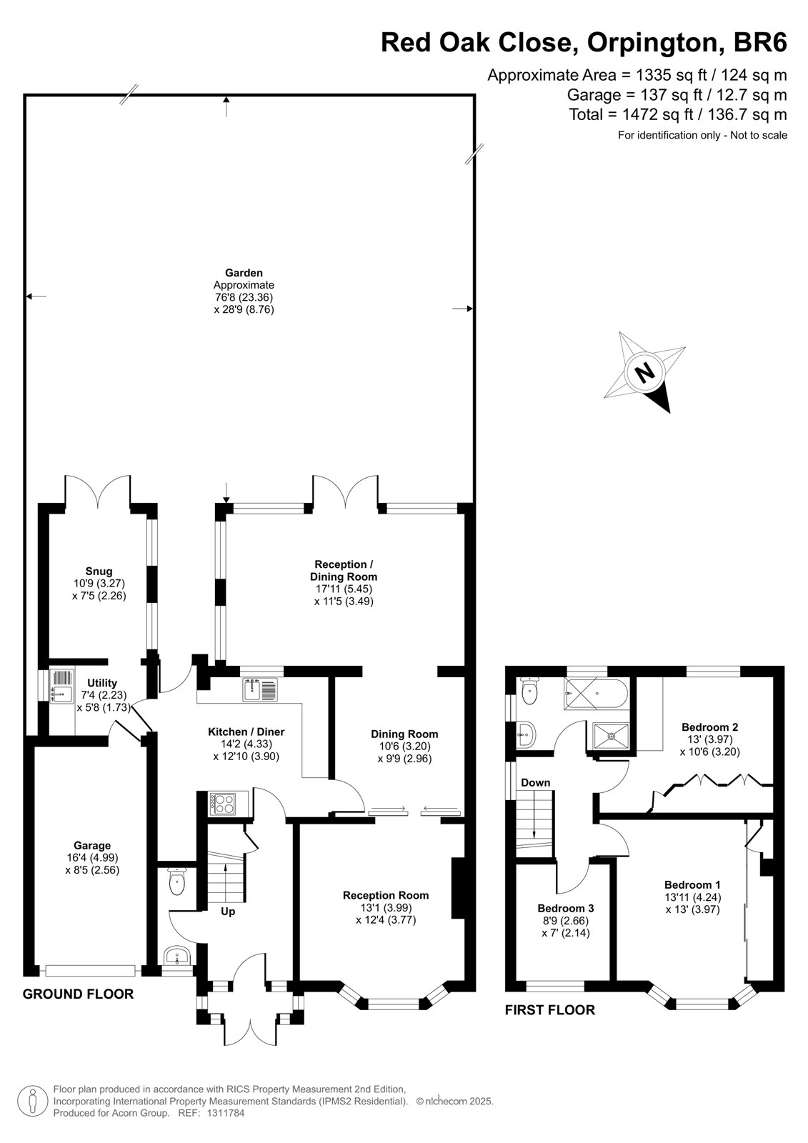
Offering spacious and versatile living throughout, the property boasts a welcoming reception room complete with a feature fireplace and sliding doors, which lead effortlessly into a bright and airy open-plan lounge and dining area—perfect for entertaining guests or relaxing with family. The kitchen is fitted with a range of base and wall units and benefits from an abundance of natural light. Completing the ground floor is a convenient W.C., a separate utility room, and a versatile snug/office space, ideal for working from home or use as a quiet retreat.

Upstairs, the first floor comprises three bedrooms, two of which are doubles and a well-appointed family bathroom, perfect for growing families or those needing extra space. Externally, the home offers a private driveway to the front, a garage, and a great-sized rear garden with a green house and shed to the rear. providing ample outdoor space for children to play or for enjoying summer evenings.

The location is equally impressive with Orpington station only being 0.9 miles away and being walking distance to Darick Wood School. Orpington offer a wealth of amenities, including vibrant high streets filled with popular coffee shops, delightful restaurants, and a range of shopping facilities, all supported by large supermarkets. The area is particularly popular with families due to its excellent schooling options, from Ofsted-rated Outstanding primary schools to highly regarded grammar schools.

For commuters, regular transport links provide easy access to London Bridge, Charing Cross, and Victoria, making this an ideal location for those working in the city. Additionally, the neighbourhood is surrounded by green open spaces and local parkland, with the beautiful Kent countryside just a short drive away.
This is a fantastic opportunity to secure a wonderful family home in a location that truly has it all.

Tenure - Freehold
Energy Efficiency Rating - D
Council Tax London Borough Of Bromley Tax Band - E

Talk to Oliver Pettman from Langford Russell (Estate agents in Locksbottom)

 

Use our calculator to work out potential mortgage repayments and stamp duty costs. Please note, these calculators are for general interest only and must not be relied on. Speak to our Mortgage Scout team for further information and advice. 

Powered by

Total Mortgage

£

Estimated Monthly Mortgage Payment

£

  • Powered by

Locksbottom Area Guide

Explore the areas we serve – from parks, entertainment and transport links, to shopping, eating and drinking.

Dive into property knowledge

Visit the AcornIntel knowledge-base, our library of articles to help you make sense of all things property, or send your questions to our panel of property experts.

Get your property valued

Looking to sell or let your property? Get a free property valuation from one of our experts.

Top