The Acorn Group is London’s largest multi-brand estate agency. We offer our clients the best brands, with the best people, in the best locations.

 

Close

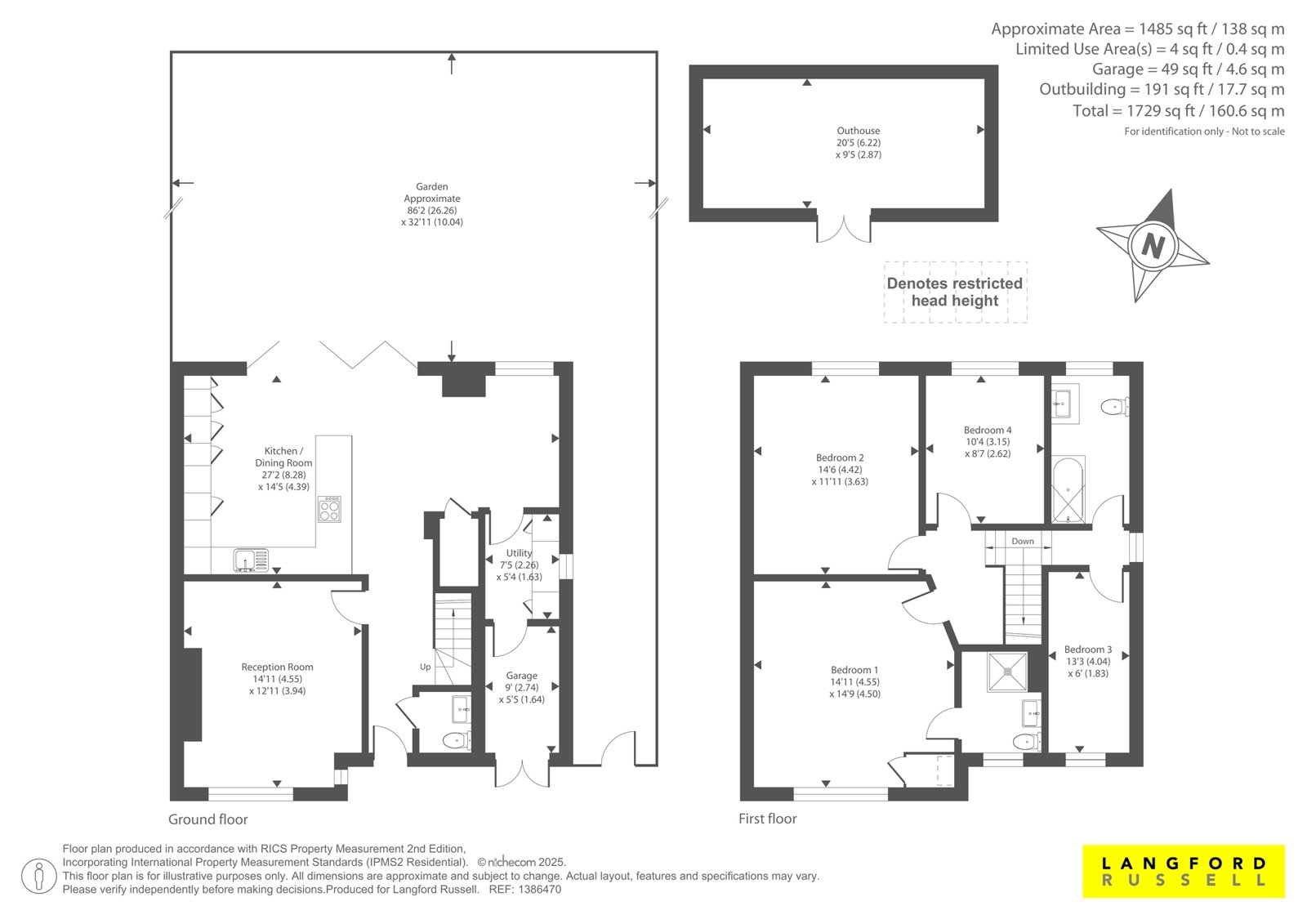
Guide price £925,000 freehold

Semi-detached House for sale - Park Avenue, BR6

** GUIDE PRICE £925,000 - £950,000 **

Langford Russell are delighted to present this truly stunning four-bedroom 1930s semi-detached family home, located on a prime road in South Orpington and just 0.4 miles from Orpington Station.

You are welcomed by a bright entrance hallway leading to a contemporary open-plan kitchen/diner that spans the full width of the property, complete with bi-fold doors opening onto the rear garden. The bespoke kitchen features integrated appliances, a ceiling-mounted extractor fan, peninsular breakfast bar and sleek handleless units. The ground floor has been beautifully finished throughout following a comprehensive refurbishment, including full rewiring, replumbing, new plastering, a new roof and driveway, and all new internal fittings.

To the first floor are four well-proportioned bedrooms, along with two stylishly tiled bathrooms and access to a large loft with potential to convert (STPP).

The rear garden extends to 115 ft and offers a secluded, well-maintained space with newly installed fencing, freshly laid turf and composite decked areas—ideal for relaxing or entertaining. The property also benefits from a two-storey side extension and a high-quality summer house/home office, bringing the total accommodation to approximately 1,700 sq. ft.

Further extension potential remains; neighbouring homes have extended to the rear to create additional living space and into the loft for further bedrooms.

Located just 0.6 miles from Orpington Station, which offers fast trains to London Bridge in just 16 minutes, and within walking distance of outstanding schools, including St Olave’s Grammar School and Warren Road Primary School.

Freehold
London Borough of Bromley - Tax Band: F
Energy Efficiency Rating: C

Talk to Oliver Pettman from Langford Russell (Estate agents in Orpington)

 

Use our calculator to work out potential mortgage repayments and stamp duty costs. Please note, these calculators are for general interest only and must not be relied on. Speak to our Mortgage Scout team for further information and advice. 

Powered by

Total Mortgage

£

Estimated Monthly Mortgage Payment

£

  • Powered by

Orpington Area Guide

Explore the areas we serve – from parks, entertainment and transport links, to shopping, eating and drinking.

Dive into property knowledge

Visit the AcornIntel knowledge-base, our library of articles to help you make sense of all things property, or send your questions to our panel of property experts.

Get your property valued

Looking to sell or let your property? Get a free property valuation from one of our experts.

Top