The Acorn Group is London’s largest multi-brand estate agency. We offer our clients the best brands, with the best people, in the best locations.

 

Close

OIEO £420,000 freehold

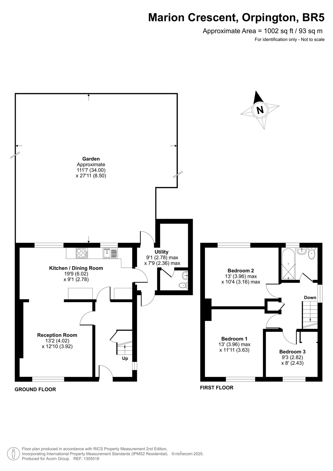
Semi-detached House for sale - Marion Crescent, BR5

Langford Russell are delighted to present this three-bedroom semi-detached property on the ever-popular Marion Crescent. The property offers the perfect blend of contemporary style, comfort, and everyday practicality—and has been newly decorated throughout for a fresh, modern finish.

Step inside to discover a bright and spacious open-plan living area that flows seamlessly into a stylish kitchen /diner, thoughtfully designed to maximise natural light and create a welcoming atmosphere. The kitchen features sleek cabinetry, generous worktop space, and high-quality integrated appliances. The property also benefits from a downstairs utility room and a convenient WC, adding valuable practicality

Leading upstairs, you'll find three well-proportioned bedrooms, providing flexible space for family living, home working, or guests. A contemporary three-piece family bathroom completes the upper floor.

Externally, the property continues to impress with a beautifully maintained rear garden. The garden features a stylish decking area perfect for entertaining or alfresco dining, alongside a neatly kept lawn for outdoor enjoyment.

Positioned on a quiet and desirable street, this property is within easy reach of excellent local schools, shops, and transport links—making it an ideal choice for families and professionals alike. Nugent Retail Park and Orpington High Street are nearby, both offer a selection of shops and restaurants. St Mary Cray train station is also only 0.4 miles away offering excellent direct services into London and Kent.

Tenure - Freehold
Council Tax London Borough Of Bromley Tax Band - C
Energy Effiiciency Rating - E

Talk to Oliver Pettman from Langford Russell (Estate agents in Orpington)

 

Use our calculator to work out potential mortgage repayments and stamp duty costs. Please note, these calculators are for general interest only and must not be relied on. Speak to our Mortgage Scout team for further information and advice. 

Powered by

Total Mortgage

£

Estimated Monthly Mortgage Payment

£

  • Powered by

Orpington Area Guide

Explore the areas we serve – from parks, entertainment and transport links, to shopping, eating and drinking.

Dive into property knowledge

Visit the AcornIntel knowledge-base, our library of articles to help you make sense of all things property, or send your questions to our panel of property experts.

Get your property valued

Looking to sell or let your property? Get a free property valuation from one of our experts.

Top