The Acorn Group is London’s largest multi-brand estate agency. We offer our clients the best brands, with the best people, in the best locations.

 

Close

Asking price £550,000 freehold

Semi-detached House for sale - Main Road, DA14

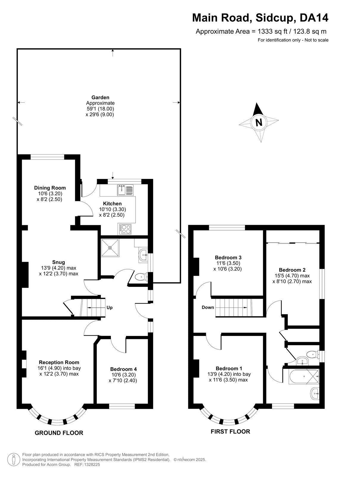
Langford Russell are delighted to present this spacious four-bedroom family home, ideally positioned on the well-connected Main Road, Sidcup. Offering generous living accommodation, a private driveway, and excellent potential to modernise, this property represents a fantastic opportunity for growing families and commuters alike.

Inside, the home features a welcoming entrance hall leading to a bright and spacious reception room with a charming bay window, a fourth bedroom or versatile study, and a well-proportioned fitted kitchen and dining area — perfect for family meals and entertaining. A ground-floor bathroom completes this level, while the north-facing rear garden provides a private outdoor retreat.

The first floor offers three double bedrooms, a family bathroom, and a separate WC, providing ample space and flexibility for modern family living.

Externally, the property benefits from off-street parking for multiple vehicles, and is offered to the market with no onward chain, making for a smooth and straightforward purchase.

Ideally located for excellent transport links, the home is within easy reach of New Eltham Station, offering direct services into London Bridge, Charing Cross, and Cannon Street. Families will also appreciate the close proximity to highly regarded schools, including Dulverton Primary School and Wyborne Primary School, both within walking distance.

This well-positioned property combines space, convenience, and exciting potential, making it an ideal choice for buyers looking to create their perfect family home in Sidcup.

Internal viewing is highly recommended.

Tenure - Freehold
Council Tax Band – E
Energy Efficiency Rating - D

Talk to Jack Power from Langford Russell (Estate agents in Sidcup)

 

Use our calculator to work out potential mortgage repayments and stamp duty costs. Please note, these calculators are for general interest only and must not be relied on. Speak to our Mortgage Scout team for further information and advice. 

Powered by

Total Mortgage

£

Estimated Monthly Mortgage Payment

£

  • Powered by

Sidcup Area Guide

Explore the areas we serve – from parks, entertainment and transport links, to shopping, eating and drinking.

Dive into property knowledge

Visit the AcornIntel knowledge-base, our library of articles to help you make sense of all things property, or send your questions to our panel of property experts.

Get your property valued

Looking to sell or let your property? Get a free property valuation from one of our experts.

Top