The Acorn Group is London’s largest multi-brand estate agency. We offer our clients the best brands, with the best people, in the best locations.

 

Close

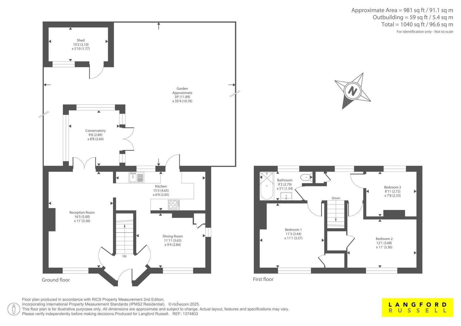
OIEO £535,000 freehold

Semi-detached House for sale - Goddard Road, BR3

Spacious three-bedroom semi detached house, located in an excellent location in Beckenham, offered Chain Free

The property comprises of two reception rooms with a further living space including a conservatory and seperate kitchen.
Upstairs offers two double bedrooms with built in storage, a third single bedroom and family bathroom.

Goddard Road is a popular residential road located close to Elmers End station offering fast and frequent services into London Bridge, Charing Cross and Cannon Street by train and Croydon by tram. The property also resides within the catchment for the ever-popular Marian Vine Primary School. Beckenham High Street isn’t too far away with its array of shops, bars, and restaurants whilst a huge 24-hour Tesco's super store is within walking distance too.

London Borough of Bromley - Council Tax Band - D
Energy Efficiency Rating - D

Talk to Eddie Youds from Langford Russell (Estate agents in Beckenham)

 

Use our calculator to work out potential mortgage repayments and stamp duty costs. Please note, these calculators are for general interest only and must not be relied on. Speak to our Mortgage Scout team for further information and advice. 

Powered by

Total Mortgage

£

Estimated Monthly Mortgage Payment

£

  • Powered by

Beckenham Area Guide

Explore the areas we serve – from parks, entertainment and transport links, to shopping, eating and drinking.

Dive into property knowledge

Visit the AcornIntel knowledge-base, our library of articles to help you make sense of all things property, or send your questions to our panel of property experts.

Get your property valued

Looking to sell or let your property? Get a free property valuation from one of our experts.

Top