The Acorn Group is London’s largest multi-brand estate agency. We offer our clients the best brands, with the best people, in the best locations.

 

Close

Asking price £700,000 freehold

Semi-detached House for sale - Faraday Avenue, DA14

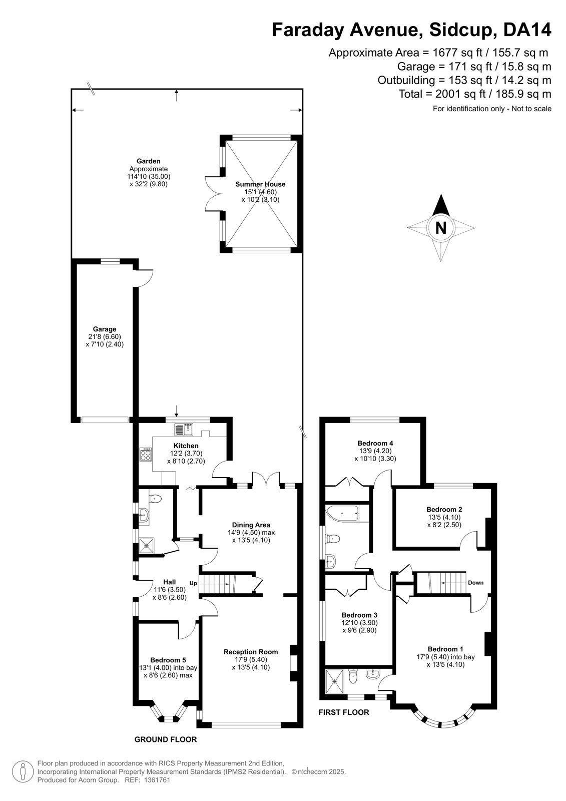
Langford Russell are delighted to present to the market a fantastic opportunity to own a four-bedroom, CHAIN FREE, chalet in the heart of Sidcup.

A welcoming spacious entrance hall is typical for this style of property and leads to a large reception room and a dining room; there is a further study or fifth room. A bathroom, separate toilet and kitchen complete the ground floor accommodation. Upstairs are four double bedrooms, the main with an en-suite, ample storage and a family bathroom.

Externally there is off street parking to the front, a garage, 114-foot garden and summer house ideal for relaxing.

Both Sidcup and Albany Park train stations are approximately 0.5 mile away providing excellent services into London Bridge, Charing Cross and Cannon Street.

The property requires some modernisation and would make an ideal project for someone looking to make their mark over time and potentially extend to create their dream home.

Tenure - Freehold
Energy Efficiency Rating D
Council Tax London Borough Of Bexley Band E

Talk to Jack Power from Langford Russell (Estate agents in Sidcup)

 

Use our calculator to work out potential mortgage repayments and stamp duty costs. Please note, these calculators are for general interest only and must not be relied on. Speak to our Mortgage Scout team for further information and advice. 

Powered by

Total Mortgage

£

Estimated Monthly Mortgage Payment

£

  • Powered by

Sidcup Area Guide

Explore the areas we serve – from parks, entertainment and transport links, to shopping, eating and drinking.

Dive into property knowledge

Visit the AcornIntel knowledge-base, our library of articles to help you make sense of all things property, or send your questions to our panel of property experts.

Get your property valued

Looking to sell or let your property? Get a free property valuation from one of our experts.

Top