The Acorn Group is London’s largest multi-brand estate agency. We offer our clients the best brands, with the best people, in the best locations.

 

Close

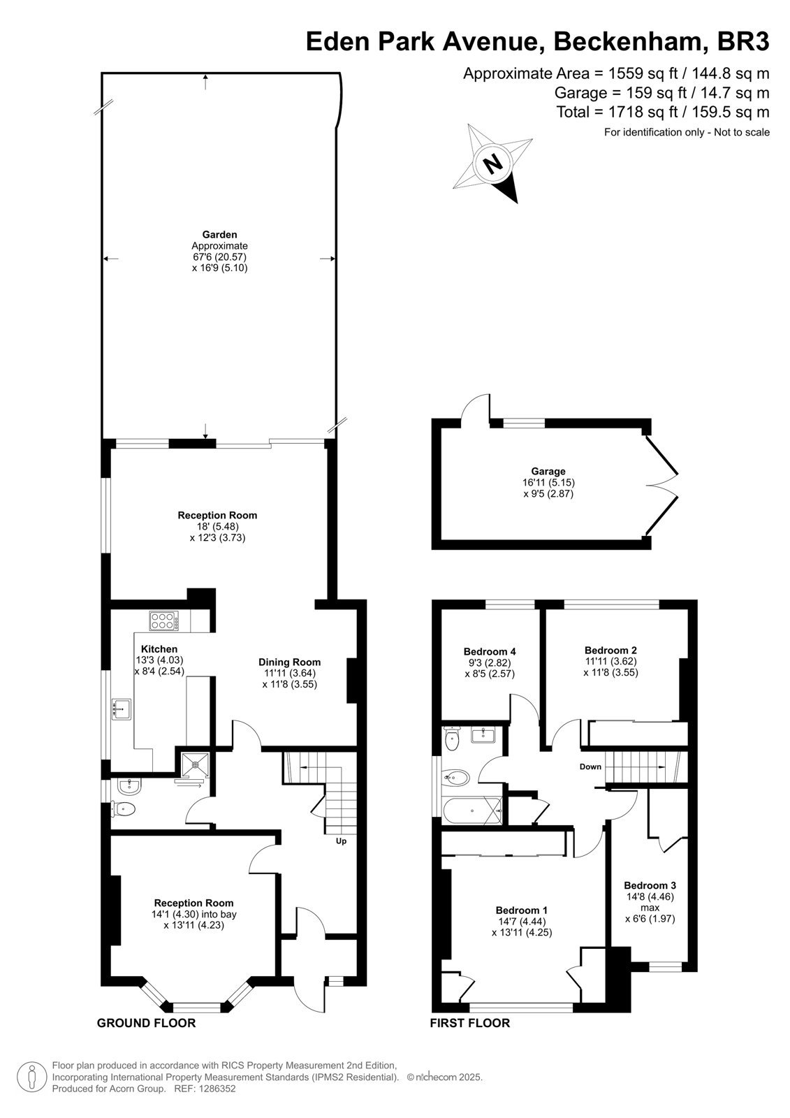
Asking price £750,000 freehold

Semi-detached House - Eden Park Avenue, BR3

Langford Russell are delighted to offer this semi-detached house to market, offered chain free. Ideally located on Eden Park Avenue the property is within walking distance to Langley Schools and Eden High, Eden Park and Elmers End Train/Tram Station, and local shops.

This property has lots of space throughout making it an ideal family home, On the ground floor there is a bright hallway which leads into a front reception room with large bay window, cloakroom/shower room, a second larger than average rear reception/dining room with open access to the fully fitted kitchen which has plenty of unit space, there are patio doors leading direct into the private lawn/paved 129' garden with raised beds and a large greenhouse, making it a lovely space to enjoy and entertain in the summer season. To the first floor are three double bedrooms with two including ample built in storage, a fourth single bedroom and a family bathroom.

Additional benefits include gas central heating, double glazed windows, side access, off street parking and potential to extend to the rear and loft (STPP)

Tenure - Freehold
Council Tax London Borough Of Bromley Tax Band - F
Energy Efficiency Rating - E

Talk to Eddie Youds from Langford Russell (Estate agents in Beckenham)

 

Use our calculator to work out potential mortgage repayments and stamp duty costs. Please note, these calculators are for general interest only and must not be relied on. Speak to our Mortgage Scout team for further information and advice. 

Powered by

Total Mortgage

£

Estimated Monthly Mortgage Payment

£

  • Powered by

Beckenham Area Guide

Explore the areas we serve – from parks, entertainment and transport links, to shopping, eating and drinking.

Dive into property knowledge

Visit the AcornIntel knowledge-base, our library of articles to help you make sense of all things property, or send your questions to our panel of property experts.

Get your property valued

Looking to sell or let your property? Get a free property valuation from one of our experts.

Top