The Acorn Group is London’s largest multi-brand estate agency. We offer our clients the best brands, with the best people, in the best locations.

 

Close

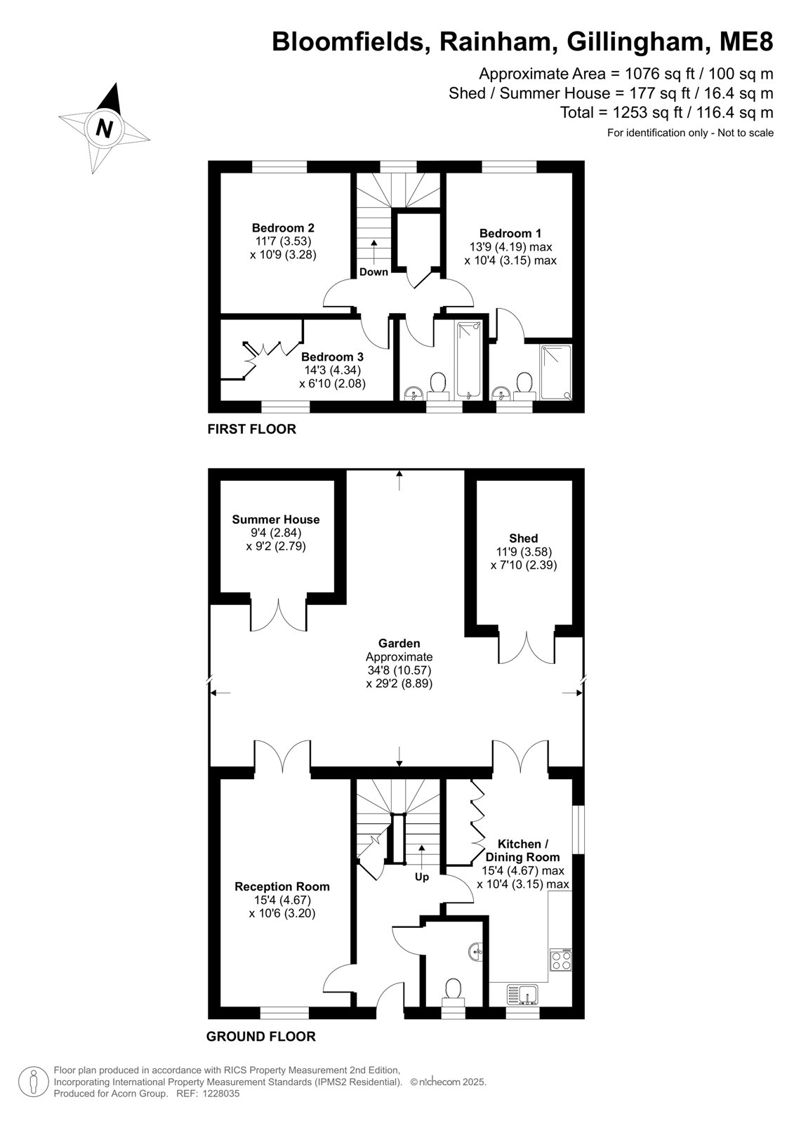
Guide price £425,000 freehold

Semi-detached House - Bloomfields, Gillingham, ME8

Situated on a popular modern development within walking distance of the mainline railway station is this superb three bedroom semi-detached family home, with not one, but two off road parking spaces and a lovely rear garden.

**GUIDE PRICE £425,000 - £450,000**

As soon as you set foot into this stunning modern home you are met with a spacious hallway leading off in multiple directions, to your left you will find the living room, dual aspect as it runs the length of the house and overlooks the rear garden.

To the right is the kitchen/diner which like the living room also runs the full length of the house and has the benefit of being dual aspect, the owners have added additional storage in the dining area as well. There is also a cloakroom and understairs storage on the ground floor.

Taking the stairs to the first floor you will find three bedrooms, with the main bedroom benefitting from an en-suite shower room, with the other two bedrooms being served by the family bathroom.

Externally there is a driveway with space for two vehicles and a rear garden that is mostly laid to lawn but also has the benefit of a shed and summerhouse.

This really could be your ideal family home, don’t delay - call Acorn today to secure your viewing appointment.

Talk to Mark Sugarman from Acorn (Estate agents in Rainham)

 

Use our calculator to work out potential mortgage repayments and stamp duty costs. Please note, these calculators are for general interest only and must not be relied on. Speak to our Mortgage Scout team for further information and advice. 

Powered by

Total Mortgage

£

Estimated Monthly Mortgage Payment

£

  • Powered by

Rainham Area Guide

Explore the areas we serve – from parks, entertainment and transport links, to shopping, eating and drinking.

Dive into property knowledge

Visit the AcornIntel knowledge-base, our library of articles to help you make sense of all things property, or send your questions to our panel of property experts.

Get your property valued

Looking to sell or let your property? Get a free property valuation from one of our experts.

Top