The Acorn Group is London’s largest multi-brand estate agency. We offer our clients the best brands, with the best people, in the best locations.

 

Close

Asking price £675,000 freehold

Semi-detached House for sale - Bexley Lane, DA14

Langford Russell are delighted to welcome to the market this vastly extended, four-bedroom, semi-detached family home in the heart of Sidcup.

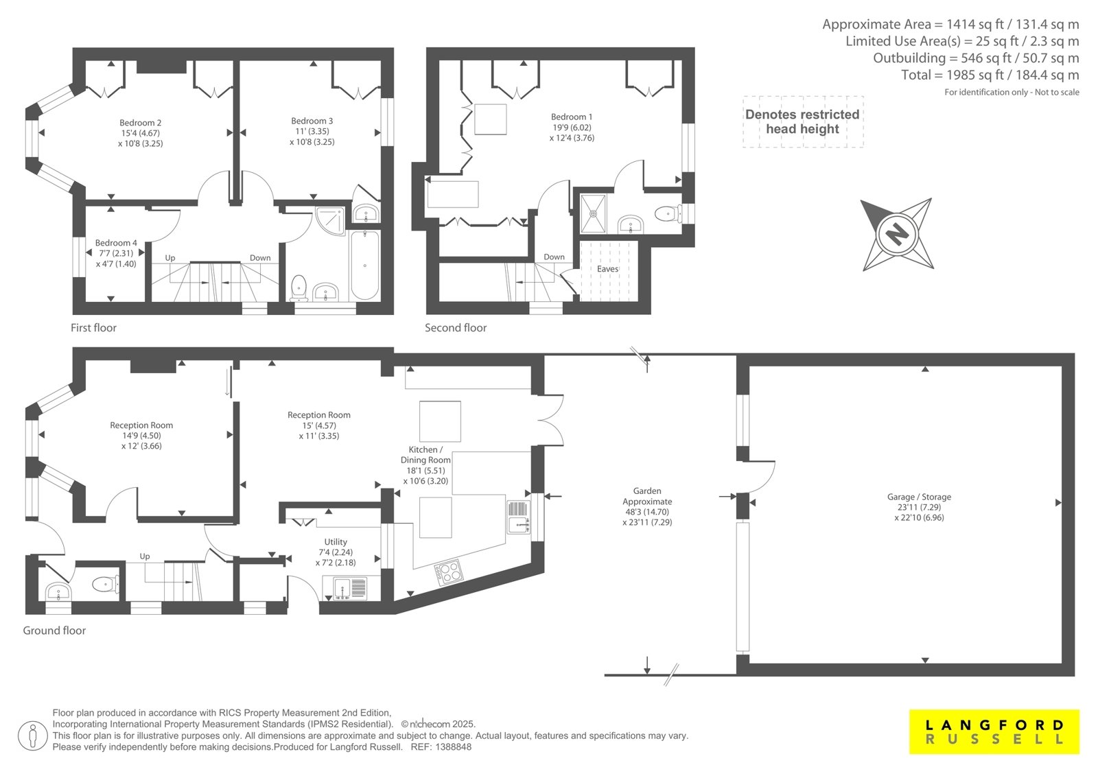
Internally, the property comprises; a entrance hall, front reception room with bay-window, dining area and open planned kitchen with velux windows, downstairs WC, utility/storage room. Across the first floor, there are two spacious double bedrooms both with built in wardrobes, an additional bedroom, as well as the spacious four-piece suite family bathroom.

On the top floor, you are welcomed by a bright and airy master bedroom benefitting from built in wardrobes and en-suite.

Externally, the property has off-street parking for two cars to the front. To the rear, there is a south-east facing garden, paved and laid to lawn. There is also a rear garage access via a shared car port, the garage is being used as storage and as a golf game simulator, there is also space for three more cars to be parked.

The property was extensively refurbished and extended in 2010, the property has been maintained well by the owners who have lived there for over 40 years and is offered in excellent condition.

The location offers families an excellent school catchment for both Primary and Secondary School children, including Hope Community School, Orchard Primary, Birkbeck Primary, Chislehurst & Sidcup Grammar, among other highly regarded schools in the area. Commuters also benefit from being approx. 0.7 miles away from Sidcup Station & Albany Park Station. The property is also a short walk away from the popular open spaces of Footscray Meadows and Five Arches.

Viewing is highly recommended.

Tenure - Freehold | Council Tax Band - E

Talk to Jack Power from Langford Russell (Estate agents in Sidcup)

 

Use our calculator to work out potential mortgage repayments and stamp duty costs. Please note, these calculators are for general interest only and must not be relied on. Speak to our Mortgage Scout team for further information and advice. 

Powered by

Total Mortgage

£

Estimated Monthly Mortgage Payment

£

  • Powered by

Sidcup Area Guide

Explore the areas we serve – from parks, entertainment and transport links, to shopping, eating and drinking.

Dive into property knowledge

Visit the AcornIntel knowledge-base, our library of articles to help you make sense of all things property, or send your questions to our panel of property experts.

Get your property valued

Looking to sell or let your property? Get a free property valuation from one of our experts.

Top