The Acorn Group is London’s largest multi-brand estate agency. We offer our clients the best brands, with the best people, in the best locations.

 

Close

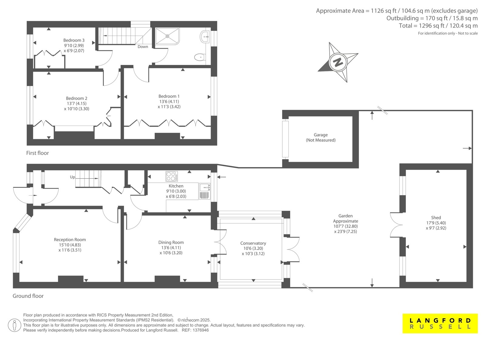
Asking price £585,000 freehold

Semi-detached House for sale - Abbots Way, BR3

The property opens with a welcoming entrance hall leading to a bright lounge, ideal for both relaxing and entertaining. Large windows provide excellent natural light and there is a second reception room with doors into the well kept conservatory. The modern fitted kitchen offers ample cupboard space, practical work surfaces and finished tastefully.

Upstairs, there are three good-sized bedrooms, each offering comfortable and flexible living space for families, guests, or a home office setup. The family bathroom is neutrally decorated and well maintained.

To the rear, the private garden provides a great outdoor space for dining, playing, or gardening. At the front of the property, you’ll find off-street parking along with a garage, offering excellent storage or secure parking options. there is also the potenital to extend to the rear and also up into the loft space (STPP).

Located in a desirable BR3 setting with convenient access to Beckenham’s amenities, transport links, and local green spaces, this home delivers both comfort and potential in a highly sought-after location.

London Borough of Bromley - Council Tax Band - D
Energy Efficiency Rating - D

Talk to Eddie Youds from Langford Russell (Estate agents in Beckenham)

 

Use our calculator to work out potential mortgage repayments and stamp duty costs. Please note, these calculators are for general interest only and must not be relied on. Speak to our Mortgage Scout team for further information and advice. 

Powered by

Total Mortgage

£

Estimated Monthly Mortgage Payment

£

  • Powered by

Beckenham Area Guide

Explore the areas we serve – from parks, entertainment and transport links, to shopping, eating and drinking.

Dive into property knowledge

Visit the AcornIntel knowledge-base, our library of articles to help you make sense of all things property, or send your questions to our panel of property experts.

Get your property valued

Looking to sell or let your property? Get a free property valuation from one of our experts.

Top