The Acorn Group is London’s largest multi-brand estate agency. We offer our clients the best brands, with the best people, in the best locations.

 

Close

Asking price £350,000 shareOfFreehold

Maisonette - Meadowview Road, SE6

Acorn are delighted to welcome to the market this ground floor maisonette with private garden and off street parking.

Located well for transport links, amenities and green spaces, the maisonette is offered with a share of freehold.

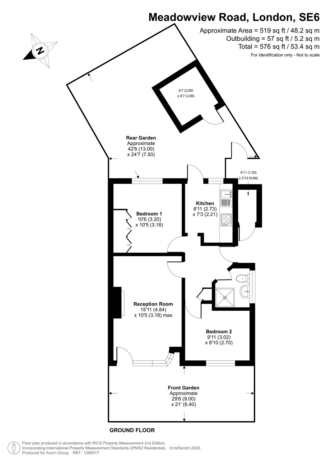
Internally, the accommodation is bright and well presented, comprising two double bedrooms, tiled shower room, well appointed kitchen with ample units, and a large light lounge with rounded bay window.

Externally the rear garden is accessible from the kitchen and side, offering patio, lawn and shingled space. The front drive provides ample off street parking.

Within a short stroll to Lower Sydenham Station and a plethora of amenities, the maisonette would make an ideal first time purchase.

Lease Length: 992 Years
Annual Service Charge: Split as & when
Council Tax Band: B
Energy Efficiency Rating: D

Talk to Jake Blackman from Acorn (Estate agents in Catford)

 

Use our calculator to work out potential mortgage repayments and stamp duty costs. Please note, these calculators are for general interest only and must not be relied on. Speak to our Mortgage Scout team for further information and advice. 

Powered by

Total Mortgage

£

Estimated Monthly Mortgage Payment

£

  • Powered by

Catford Area Guide

Explore the areas we serve – from parks, entertainment and transport links, to shopping, eating and drinking.

Dive into property knowledge

Visit the AcornIntel knowledge-base, our library of articles to help you make sense of all things property, or send your questions to our panel of property experts.

Get your property valued

Looking to sell or let your property? Get a free property valuation from one of our experts.

Top