The Acorn Group is London’s largest multi-brand estate agency. We offer our clients the best brands, with the best people, in the best locations.

 

Close

Guide price £350,000 leasehold

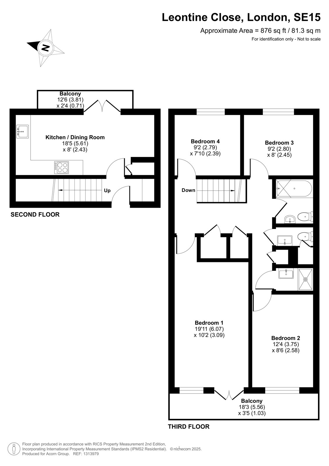
Maisonette - Leontine Close, SE15

Guide Price: £350,000 - £375,000

Split Level three bedroom unique family home situated on a peaceful residential street in the heart of Peckham. Boasting over 870sqft of flexible living accommodation spread over two floors, this well-proportioned property is sure to impress.

This rarely available and unique yellow brick town maisonette comprises; a large kitchen with access to a private balcony, three good sized double bedrooms and two bathrooms. The property benefits from permit allocated parking, tons of natural light throughout and is offered the to the market chain free!

Leontine Close is surrounded by green spaces with Jowett Street Park just a short walk and Burgess Park easily accessible via the Surrey Canal Path. Also centrally located and well-positioned for local transport links, with Queens Road Station (0.4mi) and Peckham Rye (0.6mi) both just a short walk away and a 10 minute walk from the planned Bakerloo extension site on Old Kent Road. Also within easy reach of an array of local independent bars, shops and restaurants found on Queens Road (0.4mi) Peckham Rye (0.6mi) Bellenden Road (0.6mi) high streets.

Lease Length: 105 Years
Service Charge: £4,200 pa
Ground Rent: £10pa
Council Tax Band: C
Energy Efficiency Rating: C

Talk to James Moss from Acorn (Estate agents in Peckham Rye)

 

Use our calculator to work out potential mortgage repayments and stamp duty costs. Please note, these calculators are for general interest only and must not be relied on. Speak to our Mortgage Scout team for further information and advice. 

Powered by

Total Mortgage

£

Estimated Monthly Mortgage Payment

£

  • Powered by

Peckham Rye Area Guide

Explore the areas we serve – from parks, entertainment and transport links, to shopping, eating and drinking.

Dive into property knowledge

Visit the AcornIntel knowledge-base, our library of articles to help you make sense of all things property, or send your questions to our panel of property experts.

Get your property valued

Looking to sell or let your property? Get a free property valuation from one of our experts.

Top