The Acorn Group is London’s largest multi-brand estate agency. We offer our clients the best brands, with the best people, in the best locations.

 

Close

Guide price £500,000 shareOfFreehold

Maisonette for sale - Knowles Hill Crescent, SE13

Guide Price: £500,000 - £525,000

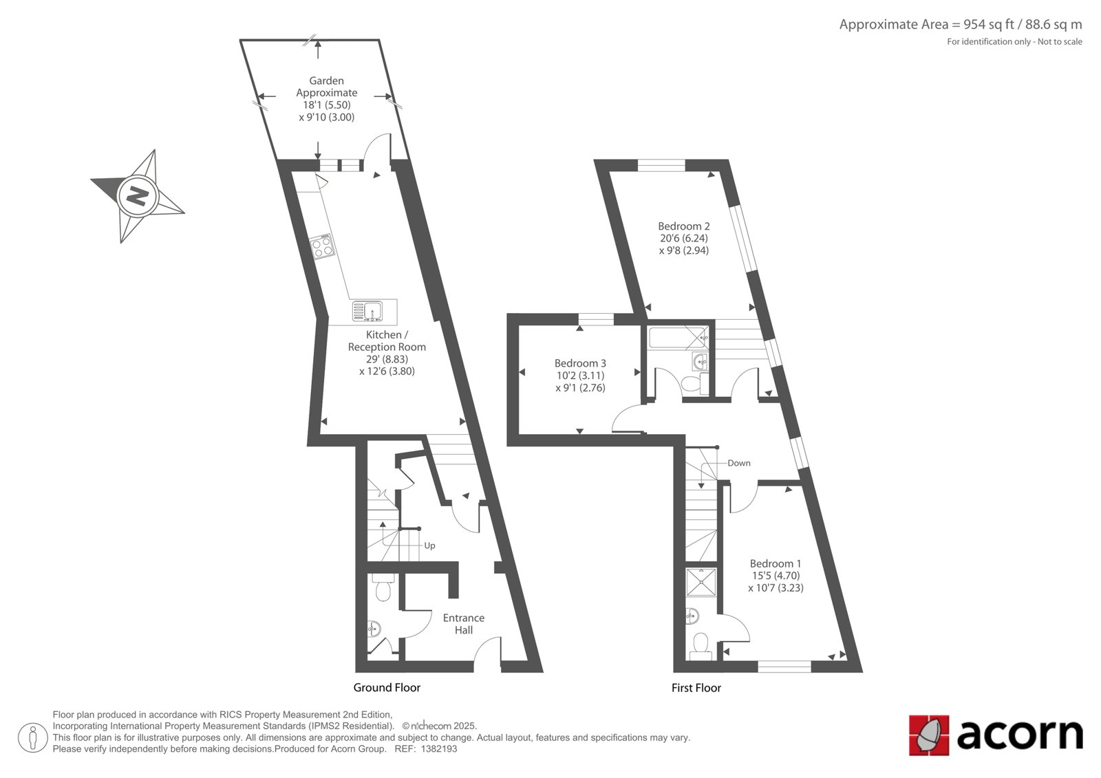
Set along the highly sought-after Knowles Hill Crescent, this beautifully refurbished three-bedroom home offers a rare opportunity to purchase a share of freehold property within a peaceful residential enclave. Thoughtfully redesigned throughout, the house blends contemporary finishes with generous proportions, resulting in a space that feels bright, sleek and highly functional.

Upon entering, the entrance hall opens into a surprisingly spacious ground floor where the heart of the home is revealed, an impressive open-plan kitchen and reception space stretching close to thirty feet. The newly fitted kitchen features clean modern cabinetry, integrated appliances and a striking island with slatted wood detailing, creating a stylish centrepiece for both cooking and social gatherings. Full-height doors at the rear draw natural light deep into the room and lead onto a private garden that is an ideal spot for morning coffee, summer dining or quiet weekend relaxation. Upstairs, the layout has been designed with practicality in mind. The principal bedroom sits to the front of the place, offering an elegant and peaceful retreat with ample space for furnishings. A further two bedrooms provide excellent versatility, whether used as children’s rooms, guest accommodation or dedicated work-from-home spaces. A contemporary family bathroom completes the first floor, finished with a clean modern aesthetic.

Lease Length: 999 Years |Service Charge: £0 |Ground Rent: £0 |Council Tax Band: TBC|

Talk to Jake Blackman from Acorn (Estate agents in Lewisham)

 

Use our calculator to work out potential mortgage repayments and stamp duty costs. Please note, these calculators are for general interest only and must not be relied on. Speak to our Mortgage Scout team for further information and advice. 

Powered by

Total Mortgage

£

Estimated Monthly Mortgage Payment

£

  • Powered by

Lewisham Area Guide

Explore the areas we serve – from parks, entertainment and transport links, to shopping, eating and drinking.

Dive into property knowledge

Visit the AcornIntel knowledge-base, our library of articles to help you make sense of all things property, or send your questions to our panel of property experts.

Get your property valued

Looking to sell or let your property? Get a free property valuation from one of our experts.

Top