The Acorn Group is London’s largest multi-brand estate agency. We offer our clients the best brands, with the best people, in the best locations.

 

Close

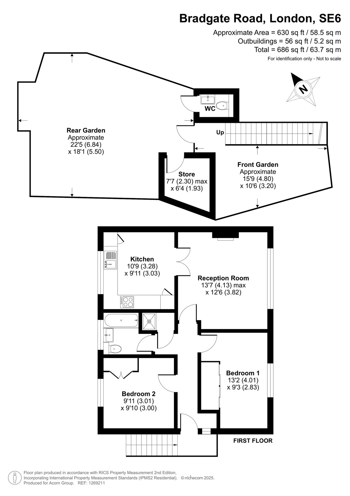
Guide price £400,000 freehold

Maisonette - Bradgate Road, SE6

Guide Price £400,000-£425,000

Acorn are delighted to welcome to the market this bright and spacious first floor maisonette, located within a short walk of Catford's mainline Rail Stations.

Boasting a share of the freehold, the property is offered to the market in turn key condition and boasts two well proportioned double bedrooms - both with fitted wardrobes, modern bathroom suite, a well appointed fitted kitchen/diner with ample units and integrated appliances; and light lounge space with feature fire place.

The maisonette further boasts its own secluded and private flagstone paved garden, with its own brick built shed.

Located well for ample amenities, the maisonette represents an ideal first time purchase in a very popular spot.

Talk to Jake Blackman from Acorn (Estate agents in Catford)

 

Use our calculator to work out potential mortgage repayments and stamp duty costs. Please note, these calculators are for general interest only and must not be relied on. Speak to our Mortgage Scout team for further information and advice. 

Powered by

Total Mortgage

£

Estimated Monthly Mortgage Payment

£

  • Powered by

Catford Area Guide

Explore the areas we serve – from parks, entertainment and transport links, to shopping, eating and drinking.

Dive into property knowledge

Visit the AcornIntel knowledge-base, our library of articles to help you make sense of all things property, or send your questions to our panel of property experts.

Get your property valued

Looking to sell or let your property? Get a free property valuation from one of our experts.

Top