The Acorn Group is London’s largest multi-brand estate agency. We offer our clients the best brands, with the best people, in the best locations.

 

Close

OIEO £950,000 freehold

House for sale - St. Josephs Vale, SE3

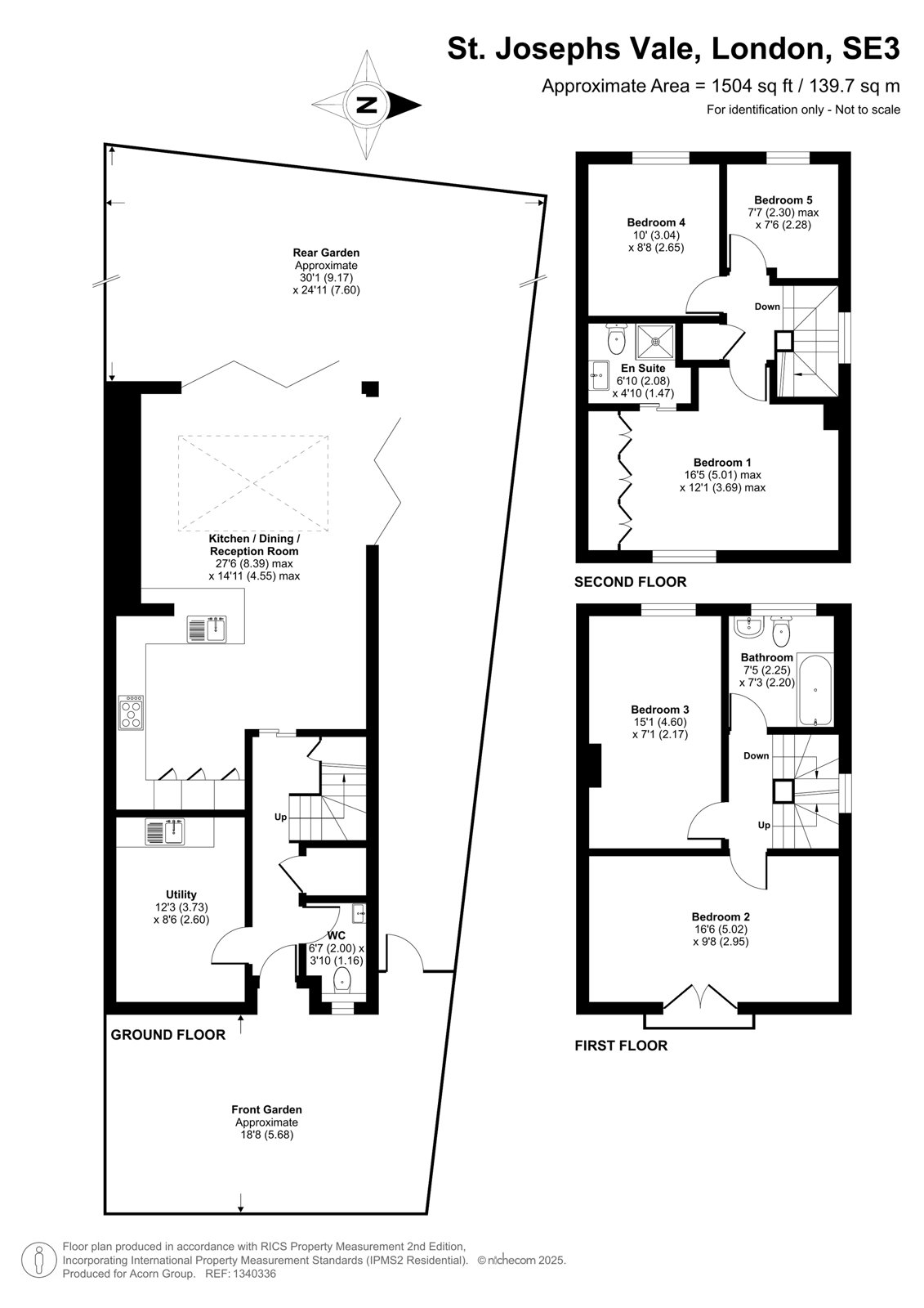
This is a well presented and spacious semi detached family house in a very sought after and quiet leafy, private development and affords light and airy accommodation over three floors.

The garage has been converted to utilty space and there is a stylish modern kitchen opening up to a super bright and airy dining and family room with a feature Lantern skylight which floods the space with natural light and there are doors onto the garden.

There are five good sized bedrooms including a master bedroom with en suite shower room, a stylish family bathroom and a cloakroom to the ground floor. The house can be used as a four or a five bedroom if required as the large first floor front room is often used as a second reception room.

At the rear there is an attractive and neat family friendly garden and a good sized patio.

The house also benefits from off street parking to the front. There is an integral garage that is currently used as a utility room and storage area but could easily revert to a garage.

St Josephs Vale is well placed for Blackheath Village and its mainline station and superb shops, restaurant, bars and boutiques via its handy residents' footpath and also the open heath.

There are many great schools in the area and the property falls within the outstanding rated John Ball catchment area.

London Borough of Lewisham - Council Tax Band - F
Energy Efficiency Rating - C

Talk to Richard O'Toole from John Payne (Estate agents in Blackheath)

 

Use our calculator to work out potential mortgage repayments and stamp duty costs. Please note, these calculators are for general interest only and must not be relied on. Speak to our Mortgage Scout team for further information and advice. 

Powered by

Total Mortgage

£

Estimated Monthly Mortgage Payment

£

  • Powered by

Blackheath Area Guide

Explore the areas we serve – from parks, entertainment and transport links, to shopping, eating and drinking.

Dive into property knowledge

Visit the AcornIntel knowledge-base, our library of articles to help you make sense of all things property, or send your questions to our panel of property experts.

Get your property valued

Looking to sell or let your property? Get a free property valuation from one of our experts.

Top