The Acorn Group is London’s largest multi-brand estate agency. We offer our clients the best brands, with the best people, in the best locations.

 

Close

Guide price £525,000 freehold

House - Hanover Park, SE15

**Guide Price: £525,000 - £575,000**

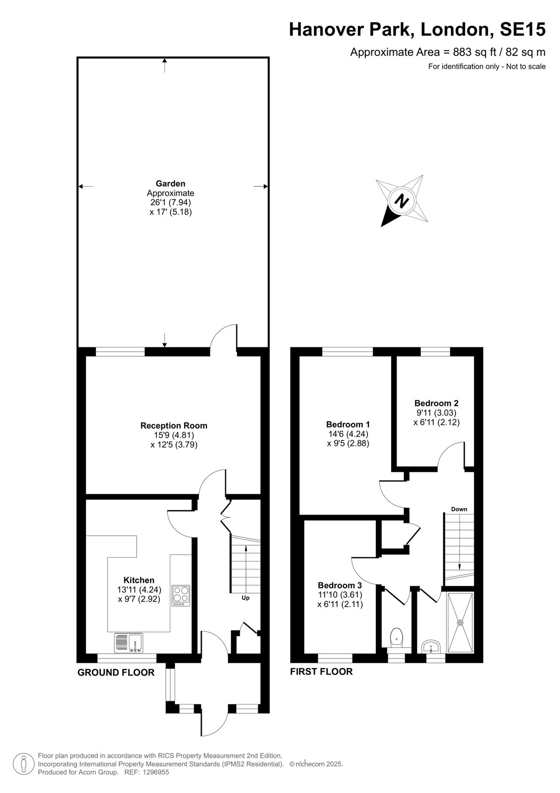
This charming freehold house presents a fantastic opportunity for those seeking a well-proportioned and conveniently located home. Offering a total of 883 square feet of internal space, the property comprises three generously sized bedrooms, making it ideal for families, professionals, or those simply looking for additional space.

Providing a comfortable and practical living environment, its layout and potential offer a perfect canvas for creating a home tailored to your needs and tastes.

To the rear of the house is a private garden, providing a lovely outdoor space for relaxation, entertaining, or gardening. This feature enhances the sense of space and connection to nature, especially desirable in urban settings.

Location is unbeatable: you’re just a stone’s throw from Peckham Rye Station (Zone 2), offering Overground and mainline services into London Bridge, Shoreditch, Clapham and beyond. The local area is bursting with independent cafés, trendy bars, art spaces and cultural spots – from the iconic Peckhamplex cinema to Peckham Levels, Frank’s Café, and the much-loved Bussey Building.

Offered chain free, the sale of this property promises a smoother, faster transaction process—ideal for those keen to move without delay. Whether you’re a first-time buyer, an upsizer, or an investor, this home represents a rare opportunity in a great location.

Southwark Council - Council Tax Band - C
Energy Efficiency Rating - C

Talk to James Moss from Acorn (Estate agents in Peckham Rye)

 

Use our calculator to work out potential mortgage repayments and stamp duty costs. Please note, these calculators are for general interest only and must not be relied on. Speak to our Mortgage Scout team for further information and advice. 

Powered by

Total Mortgage

£

Estimated Monthly Mortgage Payment

£

  • Powered by

Peckham Rye Area Guide

Explore the areas we serve – from parks, entertainment and transport links, to shopping, eating and drinking.

Dive into property knowledge

Visit the AcornIntel knowledge-base, our library of articles to help you make sense of all things property, or send your questions to our panel of property experts.

Get your property valued

Looking to sell or let your property? Get a free property valuation from one of our experts.

Top