The Acorn Group is London’s largest multi-brand estate agency. We offer our clients the best brands, with the best people, in the best locations.

 

Close

Guide price £550,000 freehold

House - Chilver Street, SE10

** GUIDE PRICE £550,000 - £570,000 **

Tucked away on a quiet and highly sought-after street in East Greenwich, this well-proportioned three-bedroom house offers excellent living space, a private garden, and an ideal layout for family life.

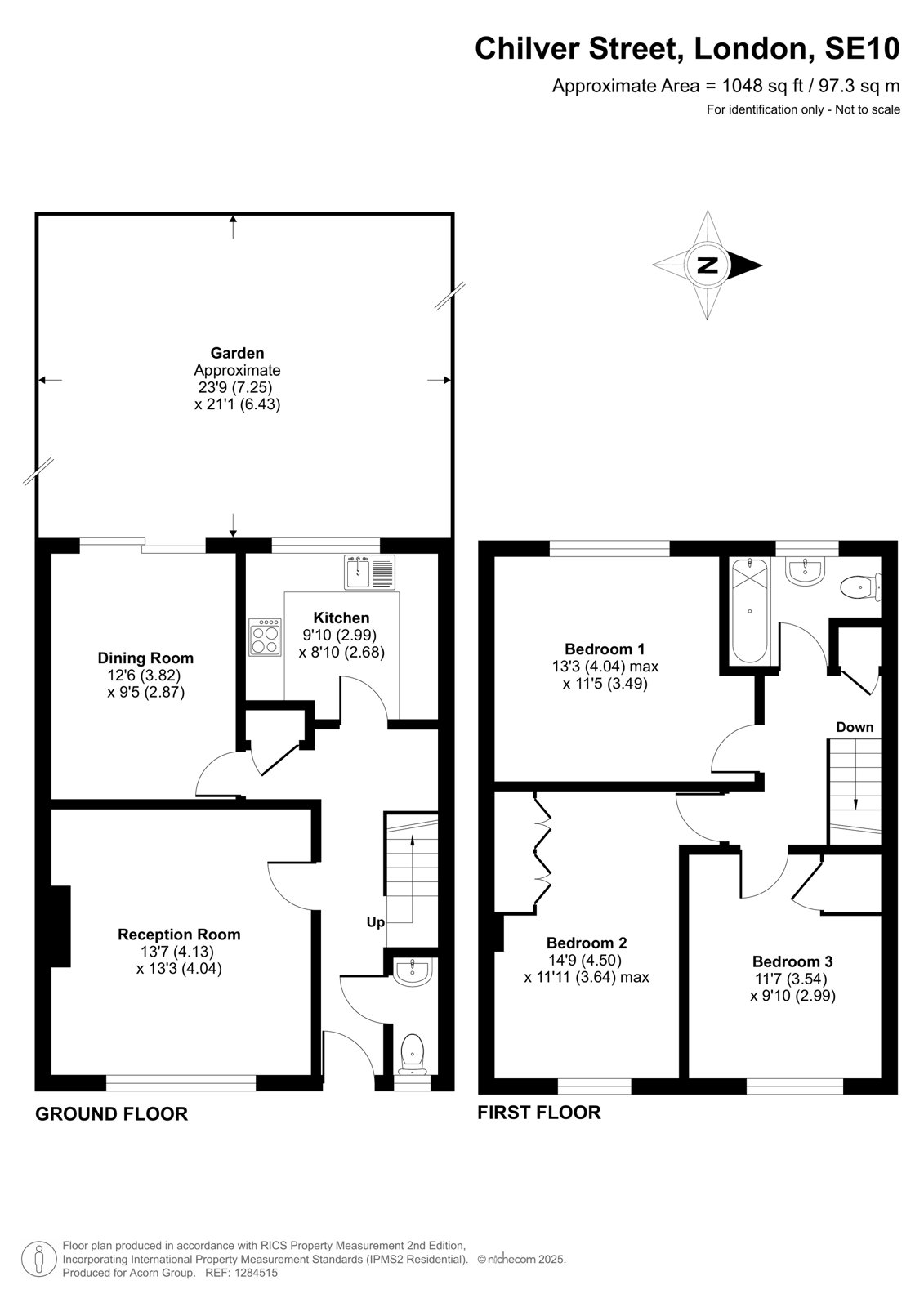
Spanning approximately 1,048 sq ft, the ground floor features a bright front reception room, a separate dining room overlooking the garden, and a well-sized kitchen with rear-facing window and good storage. Garden access is provided through the dining room, leading out to a generous 23 ft private garden — perfect for relaxing or entertaining.

Upstairs, the property boasts three comfortable double bedrooms, all served by a modern family bathroom. A ground floor WC adds to the practicality of the home, and there’s useful storage space throughout.

Ideally located just a short walk from Maze Hill Station, Greenwich Park, and the amenities of Greenwich town centre, this charming home combines peaceful residential living with excellent connectivity, making it ideal for families and commuters alike.

The Royal Borough of Greenwich - Council Tax Band - C
Energy Efficiency Rating - C

Talk to Matthew Wright from John Payne (Estate agents in Greenwich East)

 

Use our calculator to work out potential mortgage repayments and stamp duty costs. Please note, these calculators are for general interest only and must not be relied on. Speak to our Mortgage Scout team for further information and advice. 

Powered by

Total Mortgage

£

Estimated Monthly Mortgage Payment

£

  • Powered by

Area Guide

Explore the areas we serve – from parks, entertainment and transport links, to shopping, eating and drinking.

Dive into property knowledge

Visit the AcornIntel knowledge-base, our library of articles to help you make sense of all things property, or send your questions to our panel of property experts.

Get your property valued

Looking to sell or let your property? Get a free property valuation from one of our experts.

Top