The Acorn Group is London’s largest multi-brand estate agency. We offer our clients the best brands, with the best people, in the best locations.

 

Close

Guide price £500,000 freehold

End Of Terrace House - The Street, Sevenoaks, TN15

**Guide Price £500,000 - £520,000**

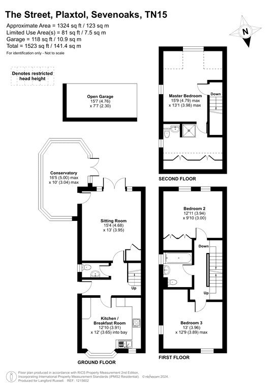
Langford Russell present this three bedroom End of Terrace house, located in the sought-after village of Plaxtol.

You enter a spacious hallway with Cloakroom, followed by the reception room comprising of a sitting room with a storage cupboard and doors opening to the terrace, and a conservatory also opening to the terrace.

The kitchen/breakfast room is fitted with white goods and has a window with a view to the Village. The first floor has two double bedrooms, one with built-in wardrobes , the floor also offers a family bathroom. The second floor has a further bedroom with an en-suite shower room and eaves storage.

The delightful south-facing paved rear garden is surrounded with well-developed borders. Also there is gated access to the carport and an allocated parking space.

Plaxtol is a village and civil parish in the borough of Tonbridge and Malling in Kent, England. The village is located around 5 miles north of Tonbridge and the same distance east of Sevenoaks.

Freehold | Energy Performance Rating C | Tonbridge & Malling Council Tax Band E

Talk to Robert Keeble from Langford Russell (Estate agents in Sevenoaks)

 

Use our calculator to work out potential mortgage repayments and stamp duty costs. Please note, these calculators are for general interest only and must not be relied on. Speak to our Mortgage Scout team for further information and advice. 

Powered by

Total Mortgage

£

Estimated Monthly Mortgage Payment

£

  • Powered by

Sevenoaks Area Guide

Explore the areas we serve – from parks, entertainment and transport links, to shopping, eating and drinking.

Dive into property knowledge

Visit the AcornIntel knowledge-base, our library of articles to help you make sense of all things property, or send your questions to our panel of property experts.

Get your property valued

Looking to sell or let your property? Get a free property valuation from one of our experts.

Top