The Acorn Group is London’s largest multi-brand estate agency. We offer our clients the best brands, with the best people, in the best locations.

 

Close

Asking price £799,999 freehold

End Of Terrace House - Stafford Road, DA14

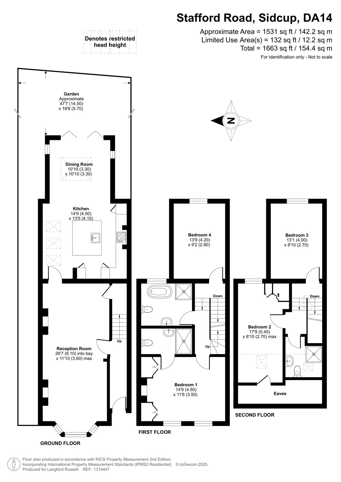
Renovated and extended to an incredibly high standard, Langford Russell are delighted to present a four double bedroom, Victorian end of terrace, situated on the highly sought after Stafford Road in Sidcup.

Internally, the property comprises; spacious open plan living/dining room with feature fireplaces, bay window and original coving, extensive kitchen/reception room with shaker style cupboards, central island, integrated appliances, and skylights with bi-folding doors overlooking the substantial, landscaped rear garden.

To the first floor is the primary bedroom, with fitted wardrobe space and en-suite shower room, modern family bathroom with freestanding shower and bath, a second double bedroom completes the first-floor accommodation.

The second floor provides two additional double bedrooms, one with fitted wardrobes and extensive eaves storage and a second en-suite shower room.

This beautiful property has been thoughtfully extended and renovated by the current owners, boasting a mix of modern and period features.

Situated just a mile from Sidcup Station, the property offers commuters speedy links into London Bridge, Charing Cross and Cannon Street. Sidcup High Street is just a short walk away, offering an array of shops, bars and eateries. For families, Longlands Primary, Dulverton Primary, Cleve Park Secondary and Chislehurst & Sidcup Grammar schools are all within close proximity.

Internal viewing is highly recommended.

Tenure – Freehold | Council Tax Band - D

Talk to Jack Power from Langford Russell (Estate agents in Sidcup)

 

Use our calculator to work out potential mortgage repayments and stamp duty costs. Please note, these calculators are for general interest only and must not be relied on. Speak to our Mortgage Scout team for further information and advice. 

Powered by

Total Mortgage

£

Estimated Monthly Mortgage Payment

£

  • Powered by

Sidcup Area Guide

Explore the areas we serve – from parks, entertainment and transport links, to shopping, eating and drinking.

Dive into property knowledge

Visit the AcornIntel knowledge-base, our library of articles to help you make sense of all things property, or send your questions to our panel of property experts.

Get your property valued

Looking to sell or let your property? Get a free property valuation from one of our experts.

Top