The Acorn Group is London’s largest multi-brand estate agency. We offer our clients the best brands, with the best people, in the best locations.

 

Close

Guide price £380,000 freehold

End Of Terrace House for sale - Sandhurst Road, SE6

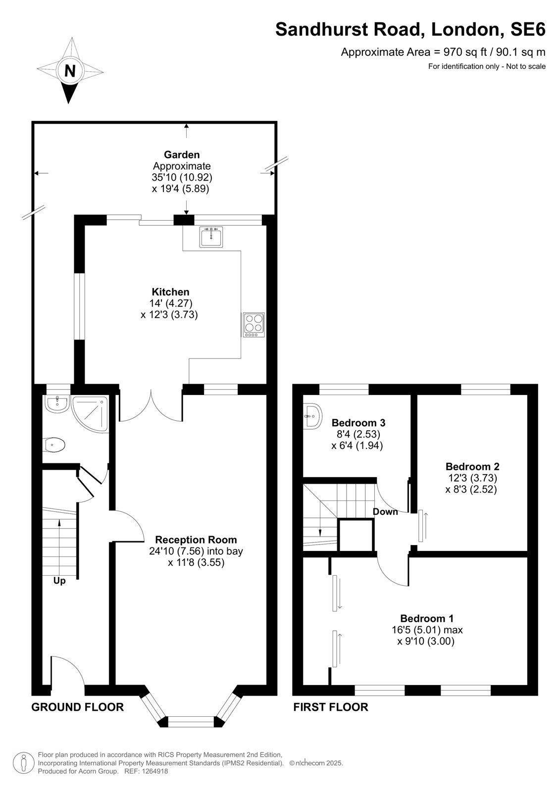
Located in a desirable residential area of SE6, this three-bedroom end of terrace property offers well-proportioned accommodation ideal for family living. The ground floor comprises a spacious 24'10 x 11'8 ft reception room, a kitchen/diner with direct access to the rear garden, and a convenient shower room. Upstairs, there are three bright and comfortable bedrooms.

The property is well situated for transport links, with Hither Green, Bellingham and Lee stations all nearby, offering regular services into Central London. Local amenities, shops and green spaces are within easy reach, and the area is well served by a number of highly regarded primary and secondary schools.

Talk to Jake Blackman from Acorn (Estate agents in Catford)

 

Use our calculator to work out potential mortgage repayments and stamp duty costs. Please note, these calculators are for general interest only and must not be relied on. Speak to our Mortgage Scout team for further information and advice. 

Powered by

Total Mortgage

£

Estimated Monthly Mortgage Payment

£

  • Powered by

Catford Area Guide

Explore the areas we serve – from parks, entertainment and transport links, to shopping, eating and drinking.

Dive into property knowledge

Visit the AcornIntel knowledge-base, our library of articles to help you make sense of all things property, or send your questions to our panel of property experts.

Get your property valued

Looking to sell or let your property? Get a free property valuation from one of our experts.

Top