The Acorn Group is London’s largest multi-brand estate agency. We offer our clients the best brands, with the best people, in the best locations.

 

Close

Guide price £800,000 freehold

End Of Terrace House for sale - Pope Road, BR2

** GUIDE PRICE £800,000 - £825.000 **

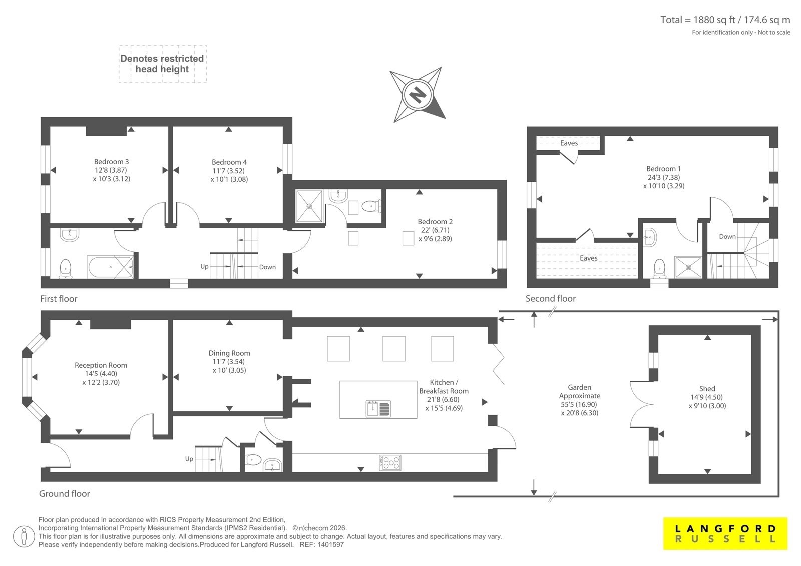
Situated on one of the area’s most sought-after roads, this impressive four double bedroom, three-bathroom family home has been thoughtfully extended to create exceptional living space, finished to a high contemporary standard throughout.

The ground floor accommodation comprises a welcoming entrance hall, downstairs WC, a front reception room with an attractive bay window, and a stunning open-plan kitchen/living area. This superb space features bi-folding doors opening onto the garden, a central island and a dedicated family sitting area, making it ideal for both everyday living and entertaining.

To the first floor are three well-proportioned double bedrooms, including one with an en-suite shower room, along with a spacious three-piece family bathroom accessed from the landing. The loft has been expertly converted to provide a generous principal bedroom with its own en-suite shower room.

The property is conveniently located close to several highly regarded primary and secondary schools, including Raglan, St George’s, The Ravensbourne and Bullers Wood.
For commuters, Bromley South Station is approximately 0.9 miles away, offering fast and frequent services to London Victoria in as little as 16 minutes. Bickley Station is also within 0.8 miles, providing additional services including Thameslink routes into Blackfriars.

Freehold
London Borough of Bromley - Tax Band: D
Energy Efficiency Rating: E

Talk to Jake Fahey from Langford Russell (Estate agents in Bromley)

 

Use our calculator to work out potential mortgage repayments and stamp duty costs. Please note, these calculators are for general interest only and must not be relied on. Speak to our Mortgage Scout team for further information and advice. 

Powered by

Total Mortgage

£

Estimated Monthly Mortgage Payment

£

  • Powered by

Bromley Area Guide

Explore the areas we serve – from parks, entertainment and transport links, to shopping, eating and drinking.

Dive into property knowledge

Visit the AcornIntel knowledge-base, our library of articles to help you make sense of all things property, or send your questions to our panel of property experts.

Get your property valued

Looking to sell or let your property? Get a free property valuation from one of our experts.

Top