The Acorn Group is London’s largest multi-brand estate agency. We offer our clients the best brands, with the best people, in the best locations.

 

Close

Guide price £400,000 freehold

End Of Terrace House for sale - Millwood Road, BR5

** GUIDE PRICE £400,000 - £425,000 **

Langford Russell are delighted to present this well-proportioned two-bedroom end of terraced home, situated within a popular residential area of Orpington. Offering spacious and versatile accommodation throughout, this property is ideal for first-time buyers, downsizers, or small families.

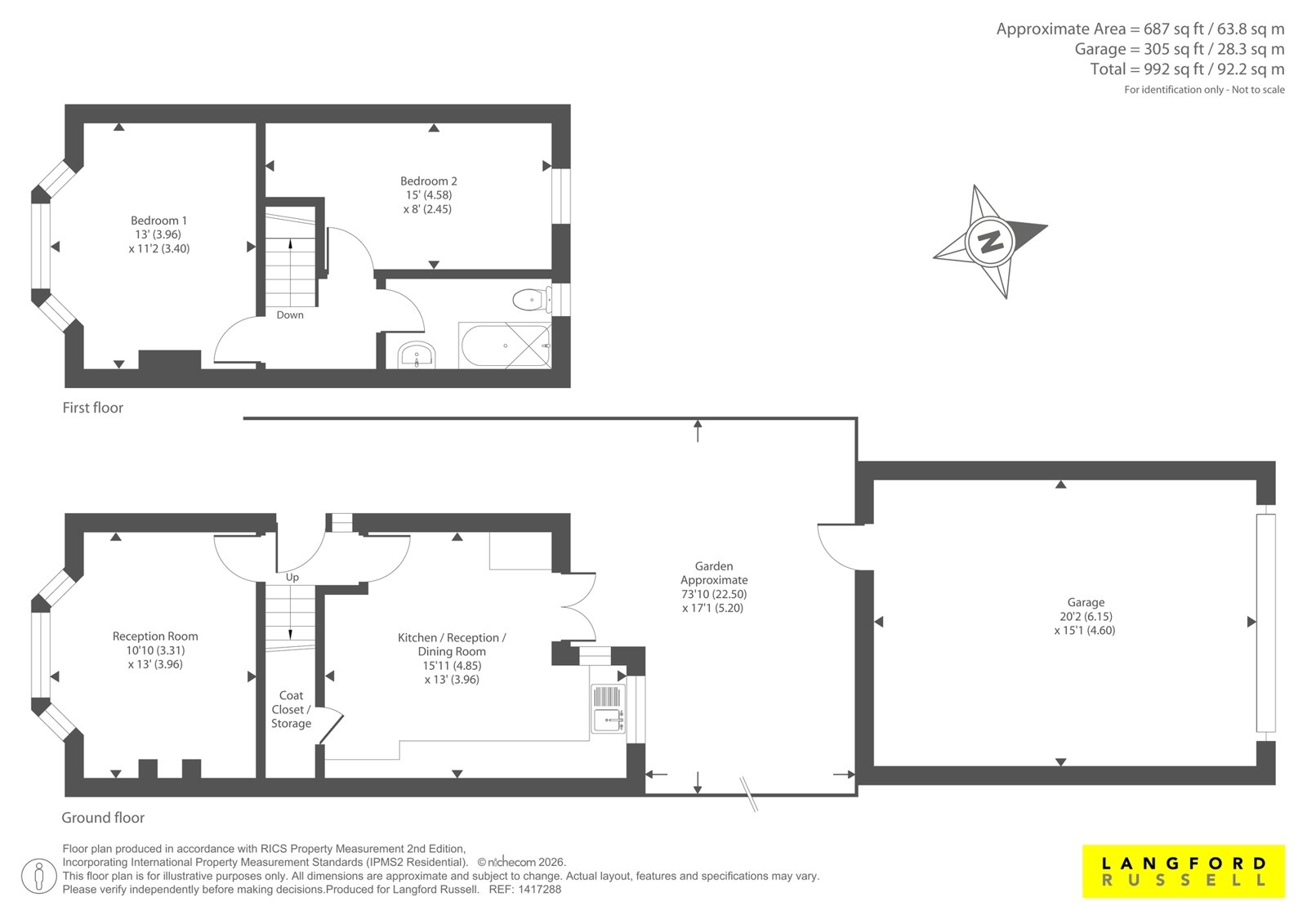
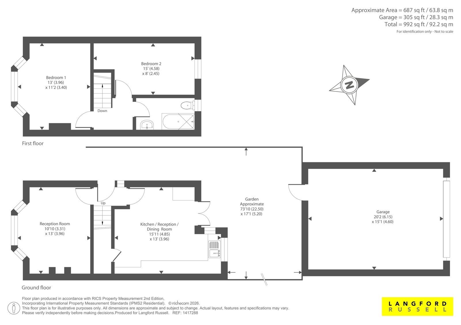
Internally, you are welcomed via an entrance hall with stairs rising to the first floor. To the front of the property is a bright and spacious reception room, featuring a bay window which allows plenty of natural light to flood the space, creating a warm and inviting living area.

To the rear of the ground floor is a generous open-plan kitchen/dining room, providing ample storage including coat closet, and worktop space, with room for a family dining table. A door from the kitchen leads directly out to the garden, making it ideal for everyday living and entertaining.

On the first floor, there are two well-proportioned double bedrooms. Bedroom one benefits from a bay window, while bedroom two overlooks the rear of the property. The accommodation is completed by a three-piece family bathroom.

Externally, the property boasts a rear garden extending approximately 73’10 in length, mainly laid to lawn with a patio area, offering excellent space for outdoor dining and entertaining. To the rear of the garden is a detached garage measuring approximately 20’2 x 15’1, providing useful storage or potential for a variety of uses. The property is conveniently located near several sought-after schools, including Manor Oak Primary, St Mary Cray Primary, and St Paul’s Cray CE Primary, as well as top grammar and independent schools such as St Olave's, Newstead Woods, Chislehurst & Sidcup, and Farringtons.

For commuters, St Mary Cray mainline station is just a 10 minute walk away, providing fast and regular services into central London. Road connections are also superb, with the A20, A2, M20, and M25 all nearby, offering easy access to destinations such as the O2 Arena, Bluewater Shopping Centre, Gatwick, and Heathrow Airports.

Tenure - Freehold | Council Tax Band - C

Talk to Oliver Pettman from Langford Russell (Estate agents in Orpington)

 

Use our calculator to work out potential mortgage repayments and stamp duty costs. Please note, these calculators are for general interest only and must not be relied on. Speak to our Mortgage Scout team for further information and advice. 

Powered by

Total Mortgage

£

Estimated Monthly Mortgage Payment

£

  • Powered by

Orpington Area Guide

Explore the areas we serve – from parks, entertainment and transport links, to shopping, eating and drinking.

Dive into property knowledge

Visit the AcornIntel knowledge-base, our library of articles to help you make sense of all things property, or send your questions to our panel of property experts.

Get your property valued

Looking to sell or let your property? Get a free property valuation from one of our experts.

Top