The Acorn Group is London’s largest multi-brand estate agency. We offer our clients the best brands, with the best people, in the best locations.

 

Close

Asking price £595,000 freehold

End Of Terrace House for sale - Hither Farm Road, SE3

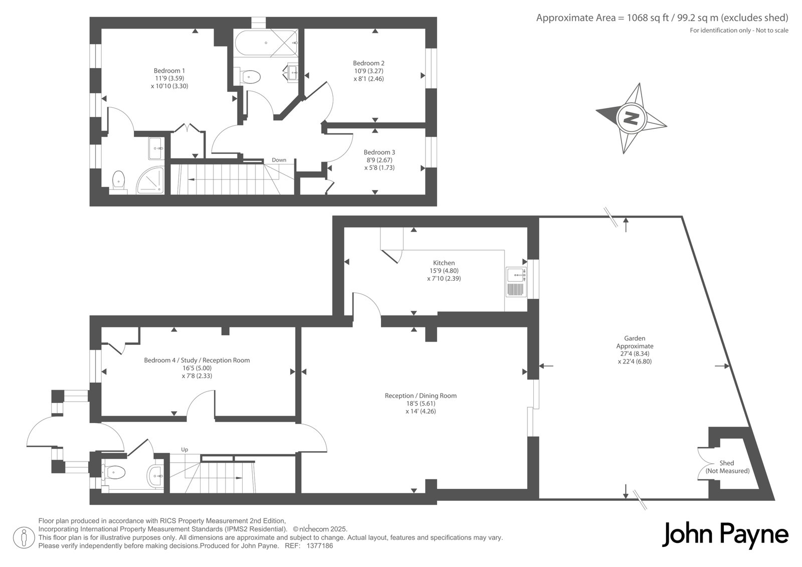
This superb three/four-bedroom end-of-terrace home has been beautifully refurbished and redecorated throughout, offering stylish, modern living from the moment you step inside.

The property has been extended to the rear, creating an impressive family room filled with natural light thanks to its skylight and patio doors that open directly onto the garden—perfect for entertaining or everyday family life.
At the front of the house, you’ll find an additional reception room, ideal as a home office, playroom, or fourth bedroom.

The former garage has been cleverly converted to form a spacious kitchen overlooking the garden and conveniently connected to the main reception space, making it the heart of the home.

Designed with practicality in mind, this home offers three bathrooms—a family bathroom, an en-suite shower room, and an additional ground-floor WC—providing excellent convenience for a busy household. All bedrooms feature wooden flooring, and the master bedroom also benefits from fitted wardrobes.

Situated on Hither Farm Road, a popular residential development just off Rochester Way, the property is a short walk from Kidbrooke Station, offering excellent transport links. A range of local amenities—including Sainsbury’s, Aldi, and PureGym—are close by, making everyday living easy and convenient.

Families will appreciate the wide choice of well-regarded schools in the area, including Thomas Tallis Secondary School, as well as Henwick and Kidbrooke Park Primary Schools, both within walking distance.

The property is offered to the market with no forward chain, providing a smooth and straightforward purchase opportunity.

Freehold
Greenwich Council

Talk to Richard O'Toole from John Payne (Estate agents in Blackheath)

 

Use our calculator to work out potential mortgage repayments and stamp duty costs. Please note, these calculators are for general interest only and must not be relied on. Speak to our Mortgage Scout team for further information and advice. 

Powered by

Total Mortgage

£

Estimated Monthly Mortgage Payment

£

  • Powered by

Blackheath Area Guide

Explore the areas we serve – from parks, entertainment and transport links, to shopping, eating and drinking.

Dive into property knowledge

Visit the AcornIntel knowledge-base, our library of articles to help you make sense of all things property, or send your questions to our panel of property experts.

Get your property valued

Looking to sell or let your property? Get a free property valuation from one of our experts.

Top