The Acorn Group is London’s largest multi-brand estate agency. We offer our clients the best brands, with the best people, in the best locations.

 

Close

Asking price £280,000 freehold

End Of Terrace House for sale - High Street, Orpington, BR5

Langford Russell are delighted to offer an opportunity to purchase this chain free, two double bedroom end of terrace house situated conveniently for St Mary Cray Station & Nugent Park Shopping Centre.

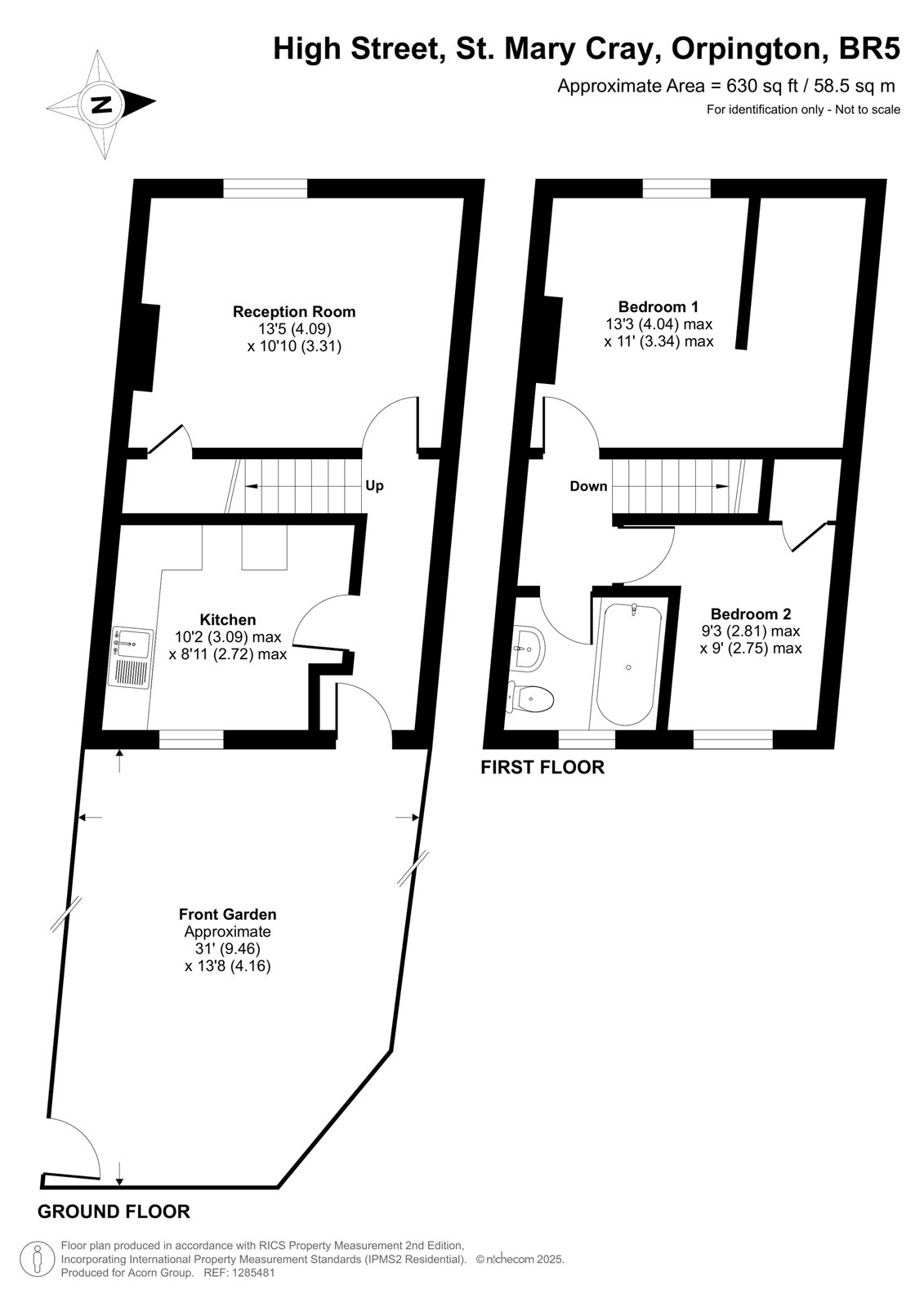
The ground floor consists of a spacious hallway, separate kitchen requiring fitting, a lounge benefiting from space for a feature fireplace and an integrated cupboard completes the ground floor. Upstairs are two bedrooms, one of which benefits from space for a walk-in-wardrobe and the other with an integrated cupboard, and a tiled family bathroom which services both the bedrooms. To the rear, the property offers a 50 ft garden with storage. There is also the benefit of a front courtyard, for outside space.

Some highly regarded schools are within proximity including some outstanding grammar schools in Orpington.

Located just (0.9 miles) from St Mary Cray Railway Station, and Orpington Station (1.7 miles) with direct connections to Waterloo, Charing Cross, Victoria and St Pancras and within walking distance of three bus routes offer convenient access to Orpington, Locksbottom, Sidcup and more. Local amenities include the Nugent Shopping centre. You will find four primary schools locally, the closest one being 0.1 Miles away being St Mary Cray Primary School.

Tenure - Freehold
London Borough of Bromley - Council Tax Band - C
Energy Efficiency Rating D

Talk to Oliver Pettman from Langford Russell (Estate agents in Orpington)

 

Use our calculator to work out potential mortgage repayments and stamp duty costs. Please note, these calculators are for general interest only and must not be relied on. Speak to our Mortgage Scout team for further information and advice. 

Powered by

Total Mortgage

£

Estimated Monthly Mortgage Payment

£

  • Powered by

Orpington Area Guide

Explore the areas we serve – from parks, entertainment and transport links, to shopping, eating and drinking.

Dive into property knowledge

Visit the AcornIntel knowledge-base, our library of articles to help you make sense of all things property, or send your questions to our panel of property experts.

Get your property valued

Looking to sell or let your property? Get a free property valuation from one of our experts.

Top