The Acorn Group is London’s largest multi-brand estate agency. We offer our clients the best brands, with the best people, in the best locations.

 

Close

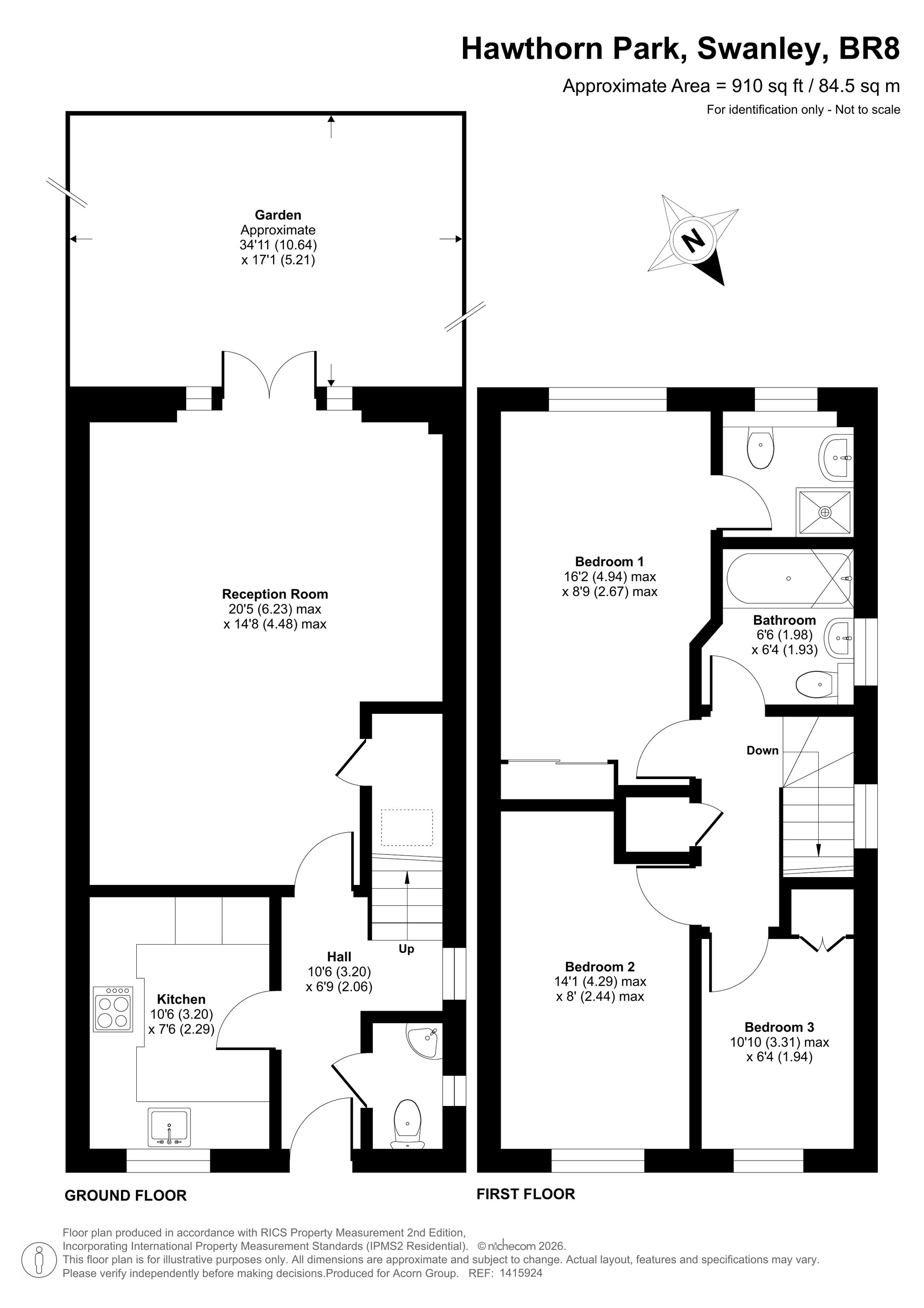
Guide price £425,000 freehold

End Of Terrace House for sale - Hawthorn Park, Kent, BR8

*** Guide Price £425,000 - £450,000 ***

Langford Russell are delighted to offer to the market this well presented, contemporary three bedroom end of terrace family home. Offered to the market CHAIN FREE, with no onward chain!

Property is located a short distance from Hextable/Swanley Village with its rural feel, which is perfect for walks/parks close by. In close proximity of some great local Schools, and the Swanley town centre.

Some well regarded schools to include - Hextable primary School, Wilmington Academy, Wilmington Grammar School and Dartford Grammar Schools.

Property comprises entrance hall, ground floor cloakroom, modern fitted kitchen with granite work surfaces and some integrated appliances, spacious lounge diner leading to a beautiful secluded rear garden with rear access.

To the first floor three bedrooms; one of which benefits from an en-suite, and a modern family bathroom. Further to note two of the three bedrooms offer built in wardrobe / storage facility.

Please note this property has a car port to the rear providing off street parking for two cars, property is double glazed and gas central heated, decorated in tasteful neutral tones throughout.

Offering double glazing and gas central heating.

This makes the ideal family home, for any growing family looking for a family home in a quiet yet easily accessible location, viewing is highly recommended, call today to arrange your internal inspection!

Tenure Freehold
Service Charge - £290 per 6 months
Sevenoaks District Council - Council Tax Band - D
Energy Efficiency Rating - C

Talk to Hayley Buist from Langford Russell (Estate agents in Swanley)

 

Use our calculator to work out potential mortgage repayments and stamp duty costs. Please note, these calculators are for general interest only and must not be relied on. Speak to our Mortgage Scout team for further information and advice. 

Powered by

Total Mortgage

£

Estimated Monthly Mortgage Payment

£

  • Powered by

Swanley Area Guide

Explore the areas we serve – from parks, entertainment and transport links, to shopping, eating and drinking.

Dive into property knowledge

Visit the AcornIntel knowledge-base, our library of articles to help you make sense of all things property, or send your questions to our panel of property experts.

Get your property valued

Looking to sell or let your property? Get a free property valuation from one of our experts.

Top