The Acorn Group is London’s largest multi-brand estate agency. We offer our clients the best brands, with the best people, in the best locations.

 

Close

OIEO £550,000 freehold

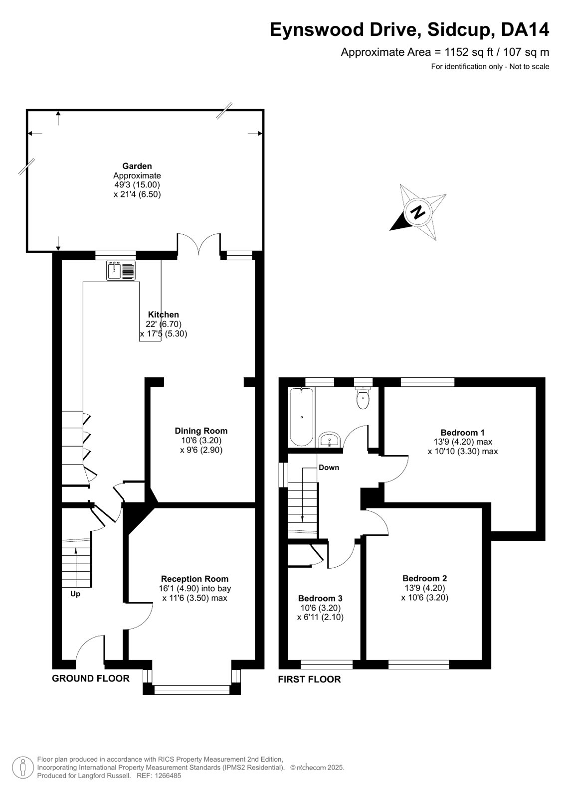
End Of Terrace House - Eynswood Drive, DA14

A beautiful newly developed three-bedroom family home offering style, space, and comfort across a generous 1,152 sq ft of living accommodation. Set in a desirable residential location in Sidcup (DA14), this property is perfect for modern family living.

Key Features:
• Three well-proportioned bedrooms located upstairs.
• Bright and spacious family bathroom.
• Reception room on the ground floor – ideal for relaxing or entertaining.
• Stunning open plan kitchen and dining area, perfect for family meals or hosting.
• Private driveway providing off-street parking.
• Lovely rear garden – great for outdoor entertaining or children’s play.

This home has been thoughtfully laid out to suit today’s lifestyle, with a seamless flow between the living areas and a light, airy feel throughout. The open-plan kitchen/diner offers plenty of space for cooking, dining, and socialising, and opens directly onto the garden – bringing the outside in during the warmer months.

Upstairs, the bedrooms are generously sized, and the family bathroom has been finished to a high standard.

Located in a popular area, close to local schools, transport links, and amenities, this property ticks all the boxes for families, first-time buyers, or anyone looking for a turnkey home in Sidcup.

Tenure: Freehold
Council Tax London Borough Of Bexley - Band E
Energy Efficiency Rating - C

Talk to Jack Power from Langford Russell (Estate agents in Sidcup)

 

Use our calculator to work out potential mortgage repayments and stamp duty costs. Please note, these calculators are for general interest only and must not be relied on. Speak to our Mortgage Scout team for further information and advice. 

Powered by

Total Mortgage

£

Estimated Monthly Mortgage Payment

£

  • Powered by

Sidcup Area Guide

Explore the areas we serve – from parks, entertainment and transport links, to shopping, eating and drinking.

Dive into property knowledge

Visit the AcornIntel knowledge-base, our library of articles to help you make sense of all things property, or send your questions to our panel of property experts.

Get your property valued

Looking to sell or let your property? Get a free property valuation from one of our experts.

Top