The Acorn Group is London’s largest multi-brand estate agency. We offer our clients the best brands, with the best people, in the best locations.

 

Close

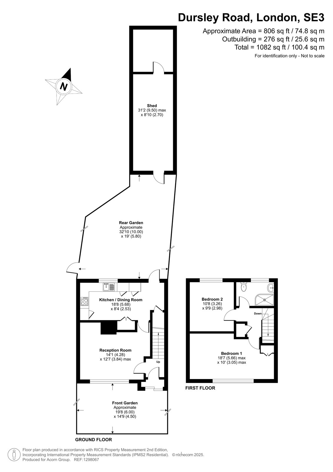
Guide price £450,000 freehold

End Of Terrace House for sale - Dursley Road, SE3

***Guide Price £450,000- £475,000***

A beautifully presented, two-bedroom house, located on a popular residential street offering superb transportation links and is being sold with no onward chain.

Internally the property has been improved by the current owners and comprises, a spacious front reception room. a sleek, modern, kitchen with some in built appliances and large enough for a dining table. On the first floor you will find two double sized bedrooms and a contemporary three-piece bathroom suite. To the rear of the property is an expansive garden, you have a patio area ideal for outside dining, a large shed which serves as a walkway to a further garden which is utilised for growing your own produce. To the front of the home is off street parking for a family sized car.

Located close to Kidbrooke Station with its good train links across London and Blackheath Village with its boutique style shops and cafe culture, beautiful farmers market, and the heath itself is close by.

Green field sites nearby include Kidbrooke playing fields, Hornfair Park, Woolwich Common and the beautiful Oxleas Woods with its Severndroog Castle

In terms of location, the property is conveniently situated with easy access to local amenities and transport links, making it an ideal choice for those seeking a blend of comfort and convenience.

Talk to Will McElligott from John Payne (Estate agents in Blackheath Standard)

 

Use our calculator to work out potential mortgage repayments and stamp duty costs. Please note, these calculators are for general interest only and must not be relied on. Speak to our Mortgage Scout team for further information and advice. 

Powered by

Total Mortgage

£

Estimated Monthly Mortgage Payment

£

  • Powered by

Blackheath Standard Area Guide

Explore the areas we serve – from parks, entertainment and transport links, to shopping, eating and drinking.

Dive into property knowledge

Visit the AcornIntel knowledge-base, our library of articles to help you make sense of all things property, or send your questions to our panel of property experts.

Get your property valued

Looking to sell or let your property? Get a free property valuation from one of our experts.

Top