The Acorn Group is London’s largest multi-brand estate agency. We offer our clients the best brands, with the best people, in the best locations.

 

Close

OIEO £509,000 freehold

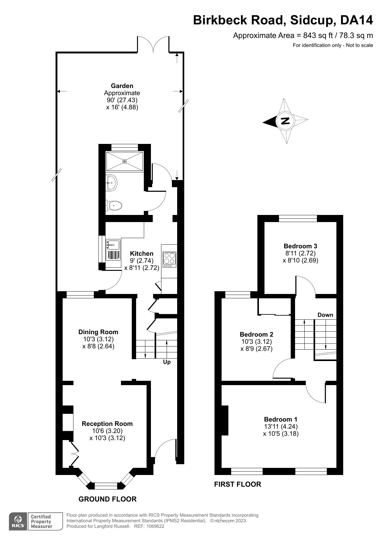
End Of Terrace House - Birkbeck Road, DA14

An exceptionally well presented, three-bedroom, end of terrace period property situated in the heart of Sidcup.

Internally, the property comprises; an entrance hall, through lounge with wood paneling and original fireplace, modern fitted kitchen with integrated appliances, downstairs shower room. Across the first floor, there are two spacious double bedrooms, a proportionately sized single room and access to loft storage through hatch.

Externally, there is a driveway to accommodate one vehicle, and a substantial rear garden which is paved with Indian sandstone, laid to lawn with a shed, electric charging point and secure gated surfaced parking space to the rear boundary which is vehicle accessible offering purchasers off street parking for an additional vehicle.

There is potential to extend, subject to relevant planning permissions being obtained.

This beautiful family home has been maintained to a high standard and is offered to the new owners in impeccable condition, situated on a highly desirable road in Sidcup.

The location offers commuters speedy transport links to London Bridge, Charing Cross, and Cannon Street via Sidcup Station (Approx. 0.4 miles). There are a range of amenities and conveniences nearby via Sidcup High Street, offering an array of Supermarkets, Shops, Bars and Restaurants.

Talk to Jack Power from Langford Russell (Estate agents in Sidcup)

 

Use our calculator to work out potential mortgage repayments and stamp duty costs. Please note, these calculators are for general interest only and must not be relied on. Speak to our Mortgage Scout team for further information and advice. 

Powered by

Total Mortgage

£

Estimated Monthly Mortgage Payment

£

  • Powered by

Sidcup Area Guide

Explore the areas we serve – from parks, entertainment and transport links, to shopping, eating and drinking.

Dive into property knowledge

Visit the AcornIntel knowledge-base, our library of articles to help you make sense of all things property, or send your questions to our panel of property experts.

Get your property valued

Looking to sell or let your property? Get a free property valuation from one of our experts.

Top