The Acorn Group is London’s largest multi-brand estate agency. We offer our clients the best brands, with the best people, in the best locations.

 

Close

Asking price £549,950 freehold

Detached House - Sandford Road, BR2

Located on one of Bromley’s most prestigious roads and offered to the market ‘Chain Free’ is this two-bedroom modern detached home.

Having undergone a complete refurbishment and programme of interior design, the specification is both luxurious and contemporary and the accommodation has been excellently designed to provide superb family living space.

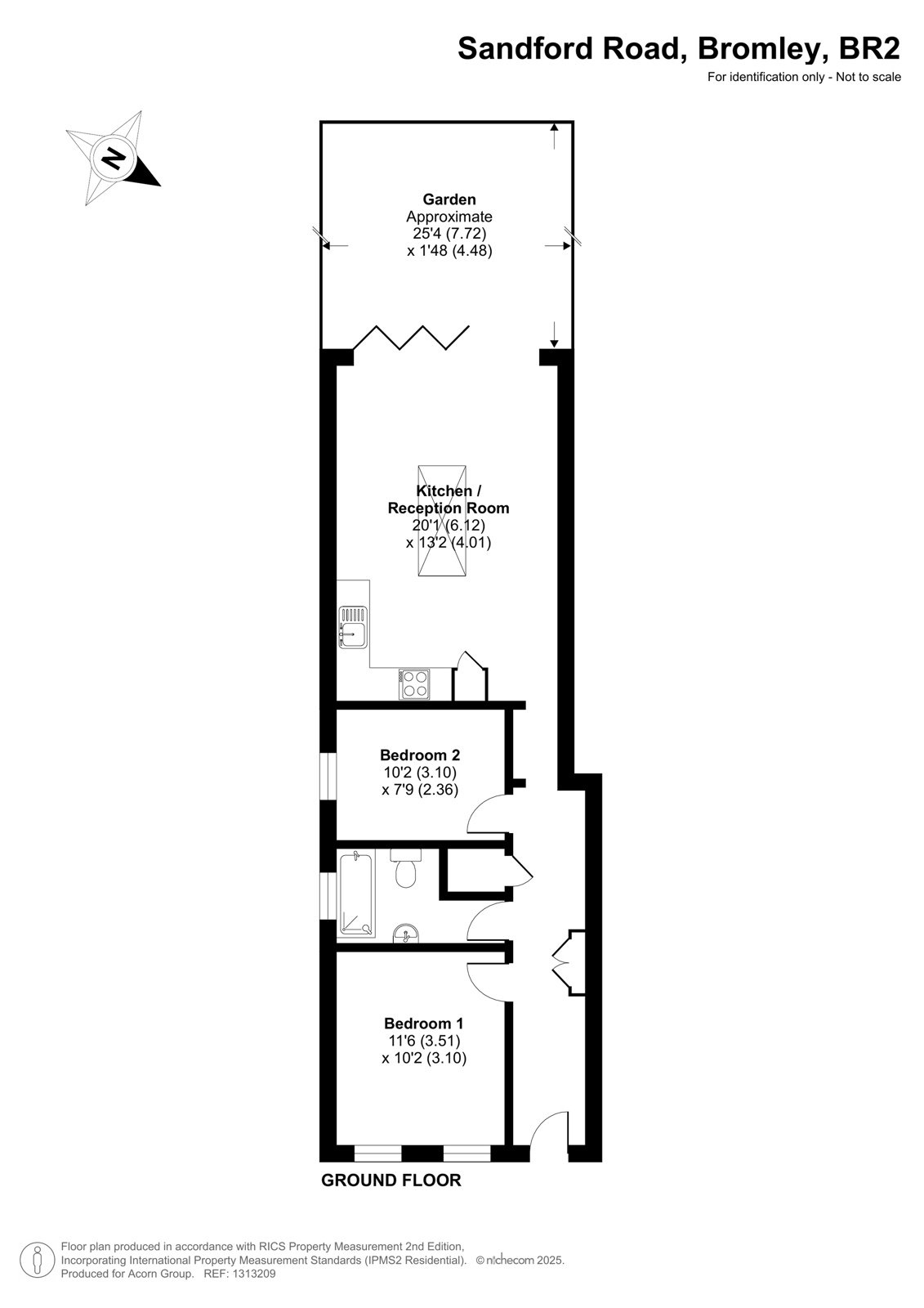
This well-presented property comprises of a wide hallway leading to a spacious open plan reception/dining and kitchen tastefully finished in modern tones, wood floors. The kitchen is modern with white gloss units, grey worktop and built in appliances. There are bi-fold doors which have direct access to the south - westerly facing garden. Both double bedrooms are finished with carpets. A tiled three-piece bathroom suite with an overhead shower completes the internal accommodation.

Externally the rear south – westerly facing garden has a stone patio and lawn and secure gated access to the off-street parking at the rear which is suitable for up to two cars. The front of the property is paved with hedges and a decorative shrub and flower bed.

Notable features include double glazed windows throughout, off street parking, external down lights and a10 year warranty.

Sandford Road is within walking distance of Bromley South train station providing fast and frequent services into Victoria in 17 mins. Numerous bus stops are close by with services to destinations in South- East and South-West London, Croydon and numerous local locations. The new Superloop service stops at the end of the road.

By car the M25 is easily accessible with Gatwick airport being within approximately 47 minutes subject to conditions.

The Glades shopping centre as well as the new St Mark’s Plaza. There are an array of restaurants, bars, coffee shops, independent and national retailers including Waitrose, leisure facilities and a state of the art cinema within easy reach. Local amenities include Bromley tennis club, with tennis and racket ball facilities, and a number of local gyms.

Local schools include St Marks and Highfield primary’s.

Energy Efficiency Rating D | Council Tax London Borough Of Bromley Band TBC

DECLARATION OF INTEREST: Section 21 of the Estate Agents Act 1979 applies in this instance, as the seller is associated/related with the Acorn Group.

Talk to Akin Kara from New Homes (Estate agents in New Homes - London)

 

Use our calculator to work out potential mortgage repayments and stamp duty costs. Please note, these calculators are for general interest only and must not be relied on. Speak to our Mortgage Scout team for further information and advice. 

Powered by

Total Mortgage

£

Estimated Monthly Mortgage Payment

£

  • Powered by

Area Guide

Explore the areas we serve – from parks, entertainment and transport links, to shopping, eating and drinking.

Dive into property knowledge

Visit the AcornIntel knowledge-base, our library of articles to help you make sense of all things property, or send your questions to our panel of property experts.

Get your property valued

Looking to sell or let your property? Get a free property valuation from one of our experts.

Top