The Acorn Group is London’s largest multi-brand estate agency. We offer our clients the best brands, with the best people, in the best locations.

 

Close

Asking price £550,000 freehold

Detached House for sale - Rollo Road, Kent, BR8

Langford Russell present this exceptional, rarely available three double bedroom detached house, set in a quiet yet easily accessible central location in the ever-popular Hextable village.

Public bus routes within walking distance, Swanley mainline train station taking you directly into central London in approximately twenty minutes, station is within the Oyster zone.

Nearby you will find lots of greenery, parkland and a local convenience store incorporating post office, as well a local doctors and chemist. Lots of well-regarded schools including, Hextable Primary School, Wilmington Primary, Dartford Grammar School, and Wilmington Grammar School. The Rowhill Grange and Utopia Spa, recently re-generated Whiteoak Leisure Centre, Swanley park all within close proximity.

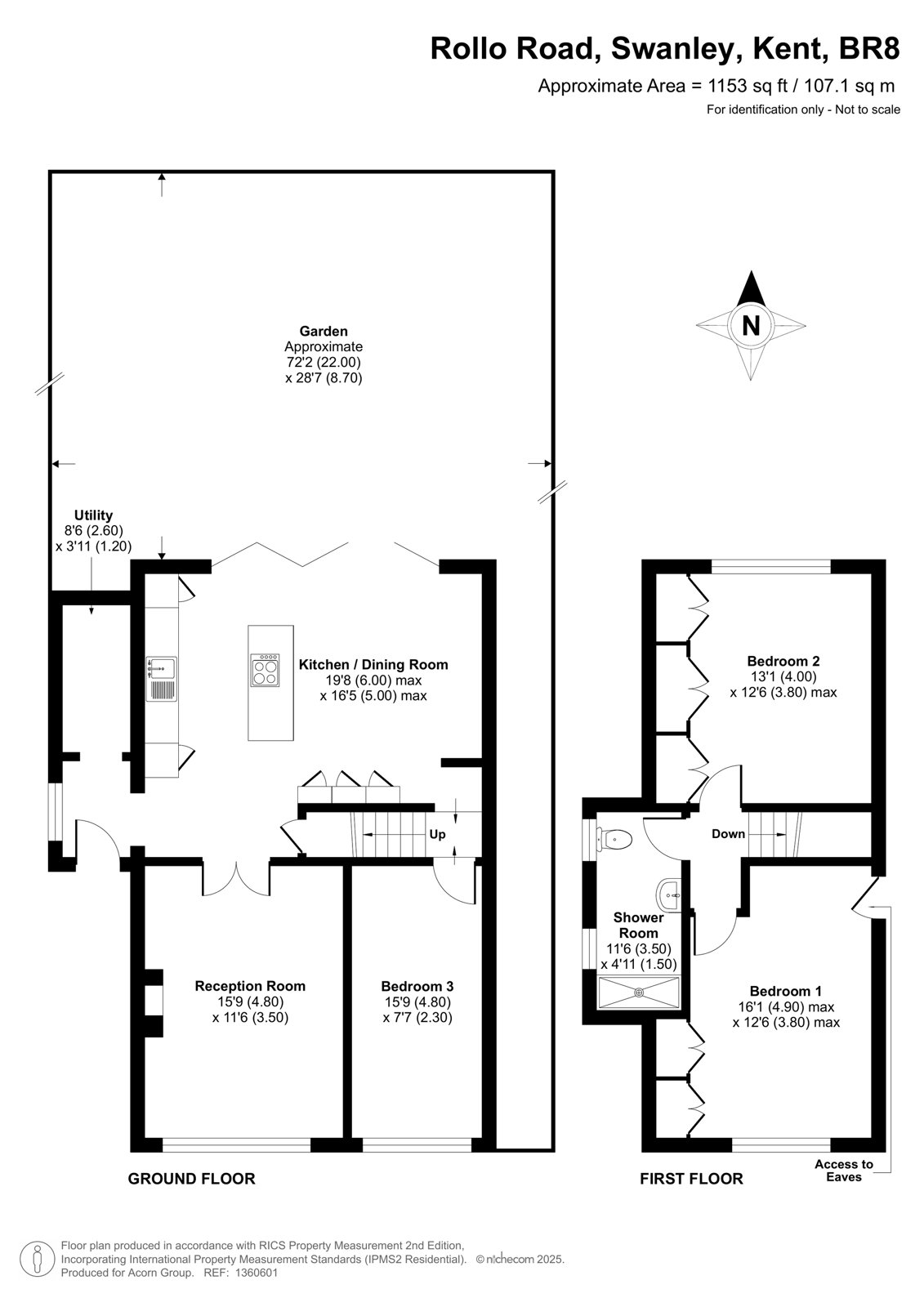
Internally, the property comprises; entrance hall, separate utility room, 15’9x11’6 reception room, 19’8x16’5 modern fitted contemporary kitchen/Dining/reception area, with by fold doors leading to an impressive rear garden, 15’9x7’7 double bedroom.

Across the first floor, there are two double bedrooms with bespoke built in wardrobes in both bedrooms and modern shower room.

Externally, you will find off street parking for two vehicles, side access to a good-sized rear garden boasting patio and lawn area, with shed to rear.

Please note this house is beautifully presented in a superb finish throughout and is the ideal family home, benefiting from three double bedrooms, offering double glazing and gas central heating with venetian shutter blinds throughout.

Tenure – Freehold | Council Tax Band - E

Talk to Hayley Buist from Langford Russell (Estate agents in Swanley)

 

Use our calculator to work out potential mortgage repayments and stamp duty costs. Please note, these calculators are for general interest only and must not be relied on. Speak to our Mortgage Scout team for further information and advice. 

Powered by

Total Mortgage

£

Estimated Monthly Mortgage Payment

£

  • Powered by

Swanley Area Guide

Explore the areas we serve – from parks, entertainment and transport links, to shopping, eating and drinking.

Dive into property knowledge

Visit the AcornIntel knowledge-base, our library of articles to help you make sense of all things property, or send your questions to our panel of property experts.

Get your property valued

Looking to sell or let your property? Get a free property valuation from one of our experts.

Top