The Acorn Group is London’s largest multi-brand estate agency. We offer our clients the best brands, with the best people, in the best locations.

 

Close

OIEO £675,000 freehold

Detached House - Malyons Road, Swanley, BR8

***Offered to the market CHAIN FREE***

Located in the heart of Hextable on a popular family orientated residential road, Langford Russell welcome to the sales market this rarely available 1930's built extended four bedroom detached family home.

Hextable is a popular residential semi-rural village with fantastic access links to many local amenities. Nearby you will find the ever popular Hextable Primary School, village shops and post office, bus routes, access to Swanley town Centre and the Swanley boat park.

The Swanley mainline train station offers a direct commute into Central London in approximately twenty minutes, and the station is within the Oyster Zone. Access to the M25/A2/A20 road links, Bluewater shopping Centre & Ebbsfleet International.

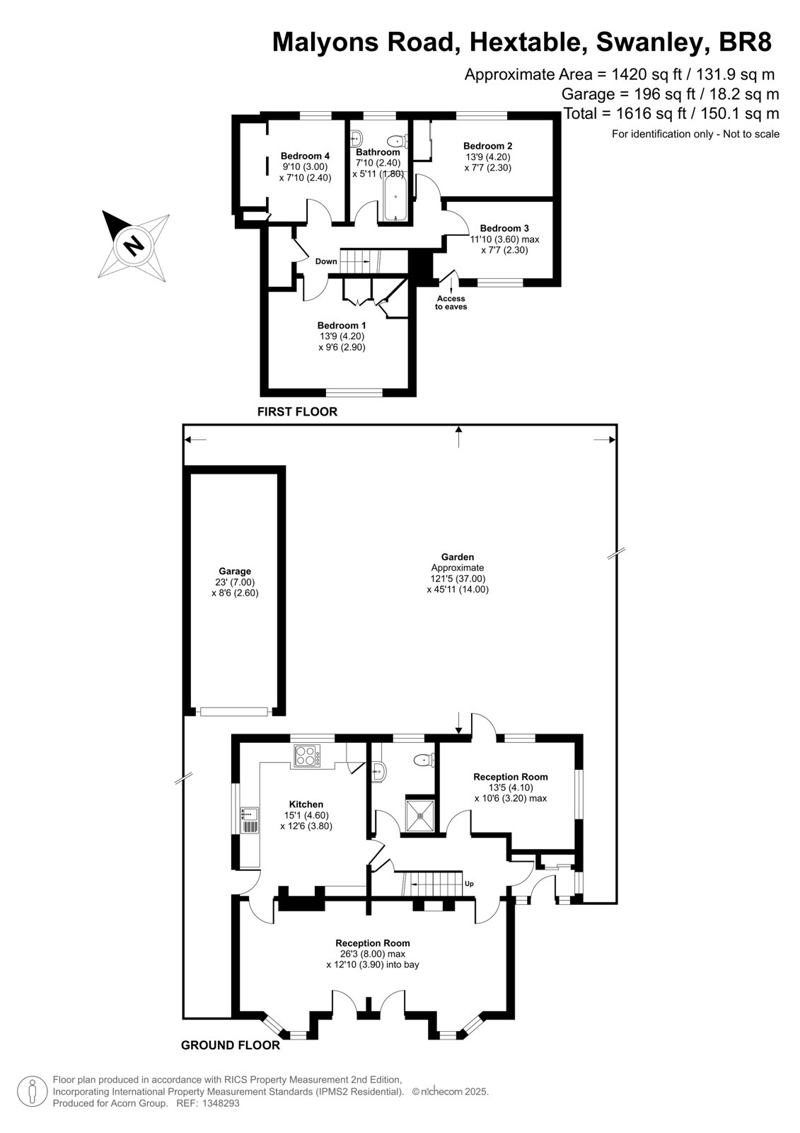
Property to ground floor comprises - Entrance porch area, entrance hall with storage cupboard, double bay fronted 26’3x12’10 reception/lounge room, 15’1x12’6 kitchen, ground floor shower room and a second reception with access leading into rear garden.

To the first floor – Landing with large storage cupboard, four bedrooms and separate family bathroom. Please note, all bedrooms are well proportioned room sizes.

Further features to note include ground floor offering parquet flooring, spacious rooms throughout with ample living space.

Residence set back from the roadside, you will find a large frontage with in/out driveway, side access to a vast secluded rear garden, the rear garden offering patio area and is mostly laid to lawn, with high conifers surrounding.

Contact us to arrange your internal inspection, viewing is highly recommended! Call now to avoid missing out!

Freehold
Sevenoaks District Council - Tax Band: F
Energy Efficiency Rating: E

Talk to Hayley Buist from Langford Russell (Estate agents in Swanley)

 

Use our calculator to work out potential mortgage repayments and stamp duty costs. Please note, these calculators are for general interest only and must not be relied on. Speak to our Mortgage Scout team for further information and advice. 

Powered by

Total Mortgage

£

Estimated Monthly Mortgage Payment

£

  • Powered by

Swanley Area Guide

Explore the areas we serve – from parks, entertainment and transport links, to shopping, eating and drinking.

Dive into property knowledge

Visit the AcornIntel knowledge-base, our library of articles to help you make sense of all things property, or send your questions to our panel of property experts.

Get your property valued

Looking to sell or let your property? Get a free property valuation from one of our experts.

Top